八王子市小門町 新築戸建 全5棟 東京都八王子市小門町 |4,550万円の新築一戸建て|エムイーPLUS多摩
| 価格 | 4,550万円値下がり ![]() |
||||
|---|---|---|---|---|---|
| 所在地 | 東京都八王子市小門町
この地域周辺の物件を見る |
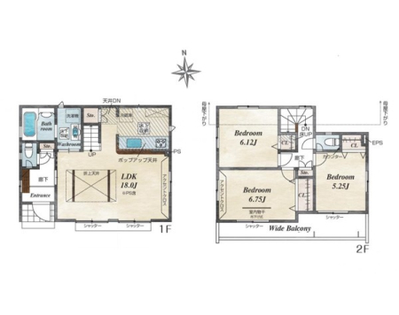
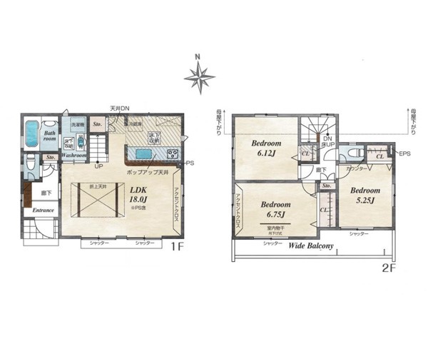
土地面積 | 101.6m² (30.73坪) | 建物面積 | 82.61u |
| 築年月 | 2025年10月築 | 間取り | 3LDK (-) | ||
| 交通 |
JR中央線 西八王子 徒歩12分
JR横浜線 八王子 徒歩24分 |
||||
| 特徴 |
|
|---|---|
| セールスコメント |
| 採光面 | - | 構造/階数 | 木造/地上2階建 |
|---|---|---|---|
| 建ぺい率 | 60(%) | 容積率 | 200(%) |
| 駐車場 | 有 | 現況/引渡し | 空家/即時 |
| 土地権利 | 所有権 | 私道負担面積 | - |
| 接道状況 | 接道: 西 公道 道路幅: 4m | 用途地域 |
準工業地域
|
| セットバック | なし | 法令上の制限 | 第二種高度地区 準防火地域 景観法 航空法 宅地造成等工事規制区域 上野第二地区区画整理事業(換地処分済)敷地面積:協定部分1.12平米含む |
| 地目 | 宅地 | 地勢 | |
| 建築確認番号 | 第R07SHC110150号 | 都市計画 | - |
| 取引態様 | 仲介 | ||
| 情報更新日 | 2025年11月07日 | 次回更新日 | 2025年11月21日 |
| 小学校区 | 八王子市立第七小学校 (東京都八王子市) この学区の他の物件を見る |
中学校区 | 第四中学校 (東京都八王子市) この学区の他の物件を見る |
|---|
| 価格 | 万円 | ||
|---|---|---|---|
| 年利率 | % |
||
| ボーナス払い | 返済年数 | ||
| 頭金 | 直接入力する | 万円 | |

毎月のご返済額 |
ボーナス(×年2回) |
物件価格4,550万円 |
![]() |
![]() |
八王子市小門町
4550万円〜5180万円 |
-