三鷹市井口4丁目第6 新築戸建 全1棟 東京都三鷹市井口4丁目|5,690万円の新築一戸建て|エムイーPLUS多摩
| 価格 | 5,690万円値下がり ![]() |
||||
|---|---|---|---|---|---|
| 所在地 | 東京都三鷹市井口4丁目
この地域周辺の物件を見る |
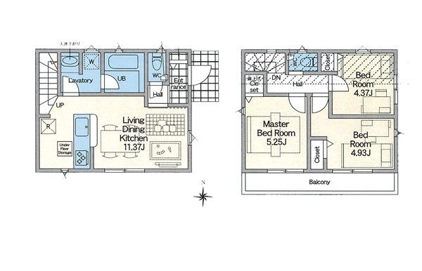
土地面積 | 82.93m² (25.08坪) | 建物面積 | 62.36u |
| 築年月 | 2025年10月築 | 間取り | 3LDK (-) | ||
| 交通 |
JR中央線 武蔵境 徒歩23分
JR中央線 武蔵境 バス4分 井口新田 停歩5分 |
||||
| 特徴 |
|
|---|---|
| セールスコメント |
| 採光面 | - | 構造/階数 | 木造/地上2階建 |
|---|---|---|---|
| 建ぺい率 | 40(%) | 容積率 | 80(%) |
| 駐車場 | 有 | 現況/引渡し | 空家/即時 |
| 土地権利 | 所有権 | 私道負担面積 | - |
| 接道状況 | 接道: 東 公道 道路幅: 4m | 用途地域 |
第一種低層住居専用地域
|
| セットバック | なし | 法令上の制限 | 22条指定区域 第一種高度地区 敷地面積100平米 高さ10m |
| 地目 | - | 地勢 | |
| 建築確認番号 | 第R07SHC107902号 | 都市計画 | 市街化区域 |
| 取引態様 | 仲介 | ||
| 情報更新日 | 2025年11月07日 | 次回更新日 | 2025年11月21日 |
| 小学校区 | 三鷹市立井口小学校 (東京都三鷹市) この学区の他の物件を見る |
中学校区 | 第二中学校 (東京都三鷹市) この学区の他の物件を見る |
|---|
| 価格 | 万円 | ||
|---|---|---|---|
| 年利率 | % |
||
| ボーナス払い | 返済年数 | ||
| 頭金 | 直接入力する | 万円 | |

毎月のご返済額 |
ボーナス(×年2回) |
物件価格5,690万円 |
-