平塚市南金目第18−2期 新築戸建 全7棟 神奈川県平塚市南金目 |2,780万円の新築一戸建て|エムイーPLUS多摩
| 価格 | 2,780万円値下がり ![]() |
||||
|---|---|---|---|---|---|
| 所在地 | 神奈川県平塚市南金目
この地域周辺の物件を見る |
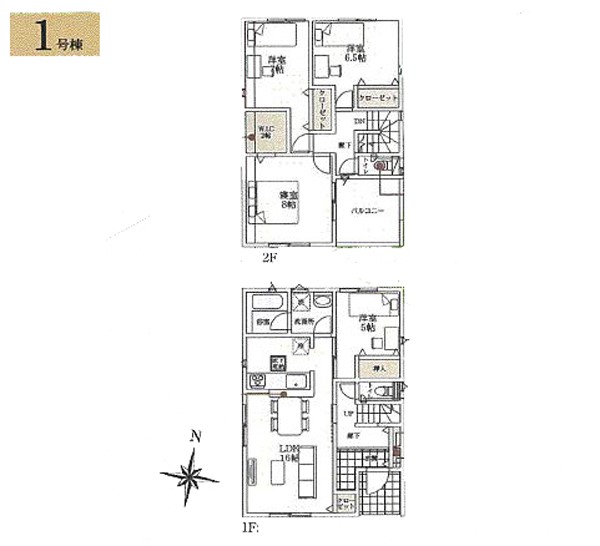
土地面積 | 121.39m² (36.72坪) | 建物面積 | 102.87u |
| 築年月 | 2026年3月築 | 間取り | 4LDK (-) | ||
| 交通 |
小田急小田原線 東海大学前 徒歩39分
小田急小田原線 東海大学前 バス15分 南金目 停歩3分 |
||||
| 特徴 |
|
|---|---|
| セールスコメント |
| 採光面 | - | 構造/階数 | 木造/地上2階建 |
|---|---|---|---|
| 建ぺい率 | 70(%) | 容積率 | 200(%) |
| 駐車場 | 有 | 現況/引渡し | -/2026年3月下旬 |
| 土地権利 | 所有権 | 私道負担面積 | - |
| 接道状況 | 接道: 南 私道 道路幅: 5m 接道: 西 公道 道路幅: 4.1m |
用途地域 |
第一種住居地域
|
| セットバック | なし | 法令上の制限 | 第一種高度地区 敷地面積110平米 |
| 地目 | 宅地 | 地勢 | |
| 建築確認番号 | 第R07SHC112039号 | 都市計画 | 市街化区域 |
| 取引態様 | 仲介 | ||
| 情報更新日 | 2026年01月13日 | 次回更新日 | 2026年01月27日 |
| 小学校区 | 平塚市立金目小学校 (神奈川県平塚市) この学区の他の物件を見る |
中学校区 | 金目中学校 (神奈川県平塚市) この学区の他の物件を見る |
|---|
| 価格 | 万円 | ||
|---|---|---|---|
| 年利率 | % |
||
| ボーナス払い | 返済年数 | ||
| 頭金 | 直接入力する | 万円 | |

毎月のご返済額 |
ボーナス(×年2回) |
物件価格2,780万円 |
![]() |
![]() |
平塚市南金目
2280万円〜2780万円 |
-