042-312-4722
定休日:水曜日 営業時間:9:00〜18:00
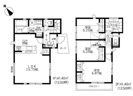
新築一戸建て|相模原市南区御園1丁目分譲住宅
〒185-0021東京都国分寺市南町2丁目14番3号ユニエトワール国分寺1階TEL:042-312-4722FAX:042-312-4733定休日:水曜日営業時間:9:00〜18:00