横浜市金沢区富岡西7丁目 新築戸建 全1棟 神奈川県横浜市金沢区富岡西7丁目|5,080万円の新築一戸建て|エムイーPLUS多摩
| 価格 | 5,080万円値下がり ![]() |
||||
|---|---|---|---|---|---|
| 所在地 | 神奈川県横浜市金沢区富岡西7丁目
この地域周辺の物件を見る |
土地面積 | 85.07m² (25.73坪) | 建物面積 | 115.11u |
| 築年月 | 2025年8月築 | 間取り | 4LDK (-) | ||
| 交通 |
京急本線 京急富岡 徒歩2分
京急本線 能見台 徒歩17分 |
||||
| 特徴 |
|
|---|---|
| セールスコメント |
| 採光面 | - | 構造/階数 | 木造/地上3階建 |
|---|---|---|---|
| 建ぺい率 | 60(%) | 容積率 | 200(%) |
| 駐車場 | 有 | 現況/引渡し | 空家/即時 |
| 土地権利 | 所有権 | 私道負担面積 | - |
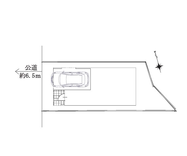
| 接道状況 | 接道: 西 6.2m 公道 道路幅: 6.5m | 用途地域 |
第一種住居地域
|
| セットバック | なし | 法令上の制限 | - |
| 地目 | 宅地 | 地勢 | 平坦 |
| 建築確認番号 | 第24UDI1K建01672号 | 都市計画 | 市街化区域 |
| 取引態様 | 仲介 | ||
| 情報更新日 | 2026年05月26日 | 次回更新日 | 2026年06月09日 |
| 小学校区 | 横浜市立富岡小学校 (神奈川県横浜市) この学区の他の物件を見る |
中学校区 | 富岡中学校 (神奈川県横浜市) この学区の他の物件を見る |
|---|
| 価格 | 万円 | ||
|---|---|---|---|
| 年利率 | % |
||
| ボーナス払い | 返済年数 | ||
| 頭金 | 直接入力する | 万円 | |

毎月のご返済額 |
ボーナス(×年2回) |
物件価格5,080万円 |
-