八王子市本町 新築未入居戸建 全1棟 東京都八王子市本町 |4,490万円の中古一戸建て|エムイーPLUS多摩
| 価格 | 4,490万円値下がり ![]() |
||||
|---|---|---|---|---|---|
| 所在地 | 東京都八王子市本町
この地域周辺の物件を見る |
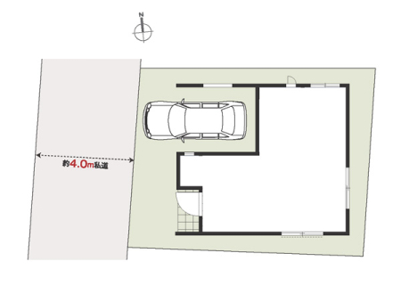
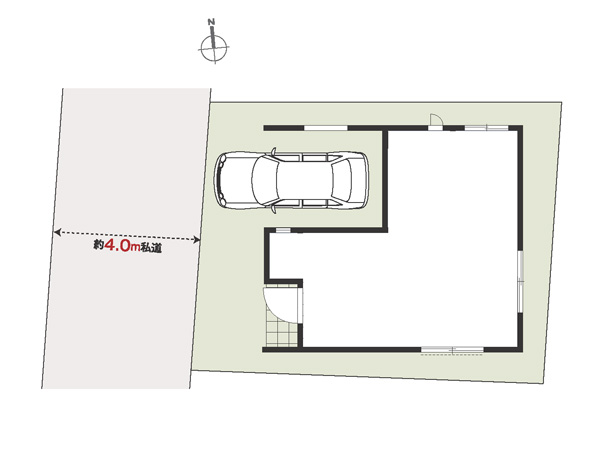
土地面積 | 69.81m² (21.11坪) | 建物面積 | 104.53u |
| 築年月 | 2024年4月築 | 間取り | 2SLDK (-) | ||
| 交通 |
JR中央線 八王子 徒歩14分
京王線 京王八王子 徒歩18分 |
||||
| 特徴 |
|
|---|---|
| セールスコメント | 八王子市立第一小学校 560m 八王子市立第五中学校 1350m |
| 採光面 | - | 構造/階数 | 木造/地上3階建 |
|---|---|---|---|
| 建ぺい率 | 60(%) | 容積率 | 200(%) |
| 駐車場 | 有 | 現況/引渡し | 空家/即時 |
| 土地権利 | 所有権 | 私道負担面積 | あり 14.05m² |
| 接道状況 | 接道: 西 私道 道路幅: 4m | 用途地域 |
準工業地域
|
| セットバック | なし | 法令上の制限 | 準防火地域 第二種高度地区 セットバック有り(本面積地に含まず0.3平米) |
| 地目 | 宅地 | 地勢 | |
| 建築確認番号 | 都市計画 | 市街化区域 | |
| 取引態様 | 仲介 | ||
| 情報更新日 | 2026年04月20日 | 次回更新日 | 2026年05月04日 |
| 小学校区 | 八王子市立第一小学校 (東京都八王子市) この学区の他の物件を見る |
中学校区 | 第五中学校 (東京都八王子市) この学区の他の物件を見る |
|---|
| 価格 | 万円 | ||
|---|---|---|---|
| 年利率 | % |
||
| ボーナス払い | 返済年数 | ||
| 頭金 | 直接入力する | 万円 | |

毎月のご返済額 |
ボーナス(×年2回) |
物件価格4,490万円 |
陽当たり良好 小学校・幼稚園が近く子育てに優しい住環境 全室2面採光 会話が弾む人気の対面キッチン 南面バルコニー