横浜市保土ケ谷区新井町5期 全2棟 新築戸建 神奈川県横浜市保土ケ谷区新井町 |4,580万円の新築一戸建て|エムイーPLUS多摩
| 価格 | 4,580万円 ![]() |
||||
|---|---|---|---|---|---|
| 所在地 | 神奈川県横浜市保土ケ谷区新井町
この地域周辺の物件を見る |
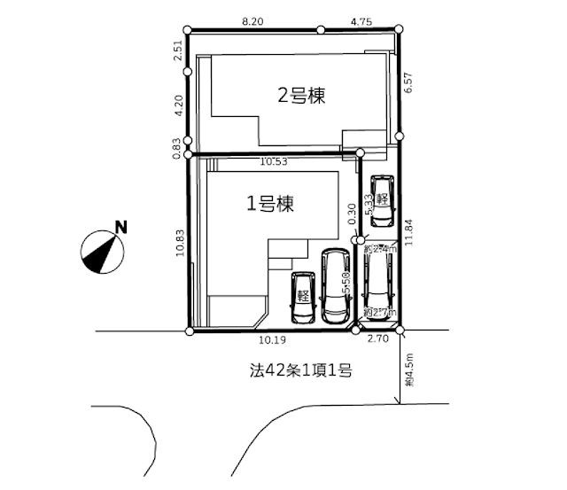
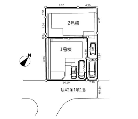
土地面積 | 112.28m² (33.96坪) | 建物面積 | 89.48u |
| 築年月 | 2026年4月築 | 間取り | 3LDK (-) | ||
| 交通 |
相鉄本線 西谷 徒歩25分
相鉄本線 西谷 バス11分 笹山団地 停歩6分 |
||||
| 特徴 |
|
|---|---|
| セールスコメント |
| 採光面 | - | 構造/階数 | 木造/地上2階建 |
|---|---|---|---|
| 建ぺい率 | 40(%) | 容積率 | 80(%) |
| 駐車場 | 有 | 現況/引渡し | 空家/即時 |
| 土地権利 | 所有権 | 私道負担面積 | - |
| 接道状況 | 接道: 北東 公道 道路幅: 4.5m | 用途地域 |
第一種低層住居専用地域
|
| セットバック | なし | 法令上の制限 | 第一種高度地区 最低敷地125u 外壁後退前面道路より1m 宅地造成および特定盛土等規制法 1・2号棟擁壁一部が、南西側隣地へ越境 共に将来是正の覚書有 上空に高圧線が通過しています(2号棟) |
| 地目 | 宅地 | 地勢 | |
| 建築確認番号 | 第25UDI1K建00469号 | 都市計画 | 市街化区域 |
| 取引態様 | 仲介 | ||
| 情報更新日 | 2026年05月03日 | 次回更新日 | 2026年05月17日 |
| 小学校区 | 横浜市立新井小学校 (神奈川県横浜市) この学区の他の物件を見る |
中学校区 | 新井中学校 (神奈川県横浜市) この学区の他の物件を見る |
|---|
| 価格 | 万円 | ||
|---|---|---|---|
| 年利率 | % |
||
| ボーナス払い | 返済年数 | ||
| 頭金 | 直接入力する | 万円 | |

毎月のご返済額 |
ボーナス(×年2回) |
物件価格4,580万円 |
![]() |
![]() |
横浜市保土ケ谷区新井町
4280万円〜4580万円 |
-