大和市上草柳8丁目 新築戸建 全1棟 神奈川県大和市上草柳8丁目|3,180万円の新築一戸建て|エムイーPLUS多摩
| 価格 | 3,180万円値下がり ![]() |
||||
|---|---|---|---|---|---|
| 所在地 | 神奈川県大和市上草柳8丁目
この地域周辺の物件を見る |
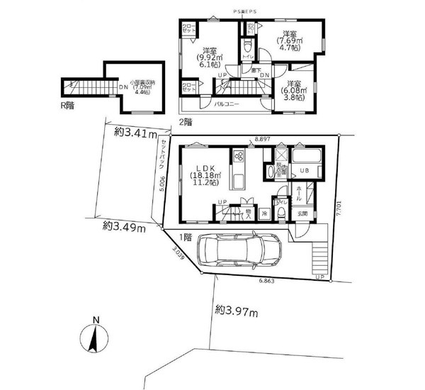
土地面積 | 64.24m² (19.43坪) | 建物面積 | 61.54u |
| 築年月 | 2025年12月築 | 間取り | 3LDK (LDK/洋室/洋室/洋室) | ||
| 交通 |
小田急江ノ島線 鶴間 徒歩13分
小田急江ノ島線 南林間 徒歩22分 |
||||
| 特徴 |
|
|---|---|
| セールスコメント |
| 採光面 | - | 構造/階数 | 木造/地上2階建 |
|---|---|---|---|
| 建ぺい率 | 50(%) | 容積率 | 100(%) |
| 駐車場 | 有 | 現況/引渡し | 空家/即時 |
| 土地権利 | 所有権 | 私道負担面積 | あり 12m² |
| 接道状況 | 接道: 南 6.8m 私道 道路幅: 3.9m 接道: 西 5m 公道 道路幅: 3.4m |
用途地域 |
第一種低層住居専用地域
|
| セットバック | なし | 法令上の制限 | 高さ制限有 |
| 地目 | 宅地 | 地勢 | |
| 建築確認番号 | 第24KAK建確03999号 | 都市計画 | 市街化区域 |
| 取引態様 | 仲介 | ||
| 情報更新日 | 2026年03月13日 | 次回更新日 | 2026年03月27日 |
| 小学校区 | 大和市立大野原小学校 (神奈川県大和市) この学区の他の物件を見る |
中学校区 | 大和中学校 (神奈川県大和市) この学区の他の物件を見る |
|---|
| 価格 | 万円 | ||
|---|---|---|---|
| 年利率 | % |
||
| ボーナス払い | 返済年数 | ||
| 頭金 | 直接入力する | 万円 | |

毎月のご返済額 |
ボーナス(×年2回) |
物件価格3,180万円 |
-