立川市砂川町8丁目 新築戸建 全1棟 東京都立川市砂川町8丁目|3,990万円の新築一戸建て|エムイーPLUS多摩
| 価格 | 3,990万円 ![]() |
||||
|---|---|---|---|---|---|
| 所在地 | 東京都立川市砂川町8丁目
この地域周辺の物件を見る |
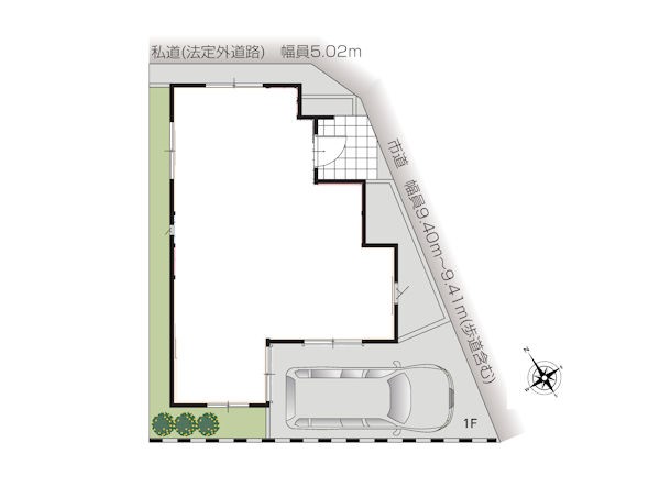
土地面積 | 80.26m² (24.27坪) | 建物面積 | 102.26u |
| 築年月 | 2026年6月築 | 間取り | 4LDK (洋室6/LDK16.7/洋室6.7) | ||
| 交通 |
西武拝島線 武蔵砂川 徒歩17分
西武拝島線 玉川上水 徒歩20分 |
||||
| 特徴 |
|
|---|---|
| セールスコメント | 私道持分あり 1452/10164 |
| 採光面 | - | 構造/階数 | 木造/地上3階建 |
|---|---|---|---|
| 建ぺい率 | 60(%) | 容積率 | 200(%) |
| 駐車場 | 有 | 現況/引渡し | -/2026年6月下旬 |
| 土地権利 | 所有権 | 私道負担面積 | - |
| 接道状況 | 接道: 東南 公道 道路幅: 9.4m 接道: 北東 私道 道路幅: 5m |
用途地域 |
第一種中高層住居専用地域
|
| セットバック | なし | 法令上の制限 | 第2高度地区 立川市中高層建築物の建築にかかわる紛争予防と調整に関する条例など |
| 地目 | 宅地 | 地勢 | 平坦 |
| 建築確認番号 | 第25UDI1W建02606号 | 都市計画 | 市街化区域 |
| 取引態様 | 仲介 | ||
| 情報更新日 | 2026年04月29日 | 次回更新日 | 2026年05月13日 |
| 小学校区 | 立川市立上砂川小学校 (東京都立川市) この学区の他の物件を見る |
中学校区 | 立川第五中学校 (東京都立川市) この学区の他の物件を見る |
|---|
| 価格 | 万円 | ||
|---|---|---|---|
| 年利率 | % |
||
| ボーナス払い | 返済年数 | ||
| 頭金 | 直接入力する | 万円 | |

毎月のご返済額 |
ボーナス(×年2回) |
物件価格3,990万円 |
-