茅ヶ崎市浜須賀 新築戸建 全9棟 神奈川県茅ヶ崎市浜須賀 |5,580万円の新築一戸建て|エムイーPLUS多摩
| 価格 | 5,580万円 ![]() |
||||
|---|---|---|---|---|---|
| 所在地 | 神奈川県茅ヶ崎市浜須賀
この地域周辺の物件を見る |
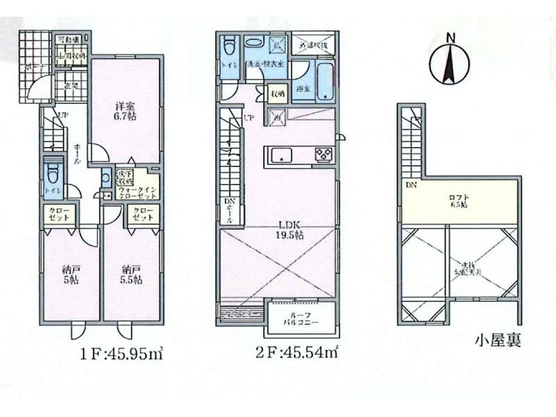
土地面積 | 101.64m² (30.74坪) | 建物面積 | 91.49u |
| 築年月 | 2025年12月築 | 間取り | 1SLDK (-) | ||
| 交通 |
JR東海道本線 辻堂 東海道本線茅ヶ崎駅 車分
|
||||
| 特徴 |
|
|---|---|
| セールスコメント |
| 採光面 | - | 構造/階数 | 木造/地上2階建 |
|---|---|---|---|
| 建ぺい率 | 50(%) | 容積率 | 100(%) |
| 駐車場 | 有 | 現況/引渡し | -/2025年12月下旬 |
| 土地権利 | 所有権 | 私道負担面積 | - |
| 接道状況 | 接道: 北 公道 道路幅: 4.2m | 用途地域 |
第一種低層住居専用地域
|
| セットバック | なし | 法令上の制限 | 日影制限3時間・2時間 測定高さ1.5m 高さ10m 最低敷地面積100平米 |
| 地目 | 宅地 | 地勢 | |
| 建築確認番号 | 第2025SBCー確00295H号 | 都市計画 | 市街化区域 |
| 取引態様 | 仲介 | ||
| 情報更新日 | 2025年11月07日 | 次回更新日 | 2025年11月21日 |
| 小学校区 | 茅ヶ崎市立緑が浜小学校 (神奈川県茅ヶ崎市) この学区の他の物件を見る |
中学校区 | 浜須賀中学校 (神奈川県茅ヶ崎市) この学区の他の物件を見る |
|---|
| 価格 | 万円 | ||
|---|---|---|---|
| 年利率 | % |
||
| ボーナス払い | 返済年数 | ||
| 頭金 | 直接入力する | 万円 | |

毎月のご返済額 |
ボーナス(×年2回) |
物件価格5,580万円 |
![]() |
![]() |
茅ヶ崎市浜須賀
5580万円〜6080万円 |
-