南足柄市中沼第12 2期 新築戸建 全3棟 神奈川県南足柄市中沼 |2,680万円の新築一戸建て|エムイーPLUS多摩
| 価格 | 2,680万円 ![]() |
||||
|---|---|---|---|---|---|
| 所在地 | 神奈川県南足柄市中沼
この地域周辺の物件を見る |
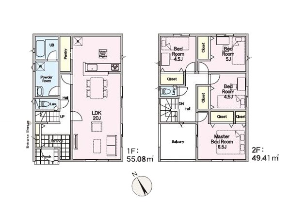
土地面積 | 145.37m² (43.97坪) | 建物面積 | 104.49u |
| 築年月 | 2025年12月築 | 間取り | 4LDK (-) | ||
| 交通 |
- - -
|
||||
| 特徴 |
|
|---|---|
| セールスコメント |
| 採光面 | - | 構造/階数 | 木造/地上2階建 |
|---|---|---|---|
| 建ぺい率 | 60(%) | 容積率 | 200(%) |
| 駐車場 | 有 | 現況/引渡し | -/2025年12月下旬 |
| 土地権利 | 所有権 | 私道負担面積 | - |
| 接道状況 | 接道: 南西 公道 道路幅: 5.1m | 用途地域 |
準工業地域
|
| セットバック | なし | 法令上の制限 | 建基法22条指定区域 |
| 地目 | 宅地 | 地勢 | |
| 建築確認番号 | 第KBI-SGM25-10-2805号 | 都市計画 | - |
| 取引態様 | 仲介 | ||
| 情報更新日 | 2025年11月15日 | 次回更新日 | 2025年11月29日 |
| 小学校区 | () |
中学校区 | () |
|---|
| 価格 | 万円 | ||
|---|---|---|---|
| 年利率 | % |
||
| ボーナス払い | 返済年数 | ||
| 頭金 | 直接入力する | 万円 | |

毎月のご返済額 |
ボーナス(×年2回) |
物件価格2,680万円 |
![]() |
![]() |
南足柄市中沼
2180万円〜2780万円 |
-