八王子市下恩方町第16 新築戸建 全10棟 東京都八王子市下恩方町 |3,080万円の新築一戸建て|エムイーPLUS多摩
| 価格 | 3,080万円値下がり ![]() |
||||
|---|---|---|---|---|---|
| 所在地 | 東京都八王子市下恩方町
この地域周辺の物件を見る |
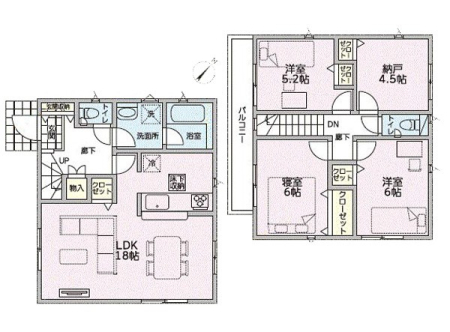
土地面積 | 153.28m² (46.36坪) | 建物面積 | 102.93u |
| 築年月 | 2025年10月築 | 間取り | 5LDK (-) | ||
| 交通 |
JR中央線 高尾 バス12分 上川原宿 停歩4分
京王高尾線 高尾 バス12分 上川原宿 停歩4分 |
||||
| 特徴 |
|
|---|---|
| セールスコメント |
| 採光面 | - | 構造/階数 | 木造/地上2階建 |
|---|---|---|---|
| 建ぺい率 | 40(%) | 容積率 | 80(%) |
| 駐車場 | 有 | 現況/引渡し | 空家/即時 |
| 土地権利 | 所有権 | 私道負担面積 | あり 457m² |
| 接道状況 | 接道: 北東 私道 道路幅: 6m | 用途地域 |
第一種低層住居専用地域
|
| セットバック | なし | 法令上の制限 | 法第22条区域 第1種高度地区 地区計画区域内 日影規制:3h-2h/1.5m 高さの制限10m 農地法 未利用地持分:3.69平米×1/10有 |
| 地目 | 宅地 | 地勢 | |
| 建築確認番号 | 第25UDI1W建01620号 | 都市計画 | 市街化区域 |
| 取引態様 | 仲介 | ||
| 情報更新日 | 2025年11月15日 | 次回更新日 | 2025年11月29日 |
| 小学校区 | 八王子市立恩方第一小学校 (東京都八王子市) この学区の他の物件を見る |
中学校区 | 恩方中学校 (東京都八王子市) この学区の他の物件を見る |
|---|
| 価格 | 万円 | ||
|---|---|---|---|
| 年利率 | % |
||
| ボーナス払い | 返済年数 | ||
| 頭金 | 直接入力する | 万円 | |

毎月のご返済額 |
ボーナス(×年2回) |
物件価格3,080万円 |
![]() |
![]() |
八王子市下恩方町
2680万円〜3380万円 |
-