八王子市諏訪町第37 新築戸建 全3棟 東京都八王子市諏訪町 |2,780万円の新築一戸建て|エムイーPLUS多摩
| 価格 | 2,780万円値下がり ![]() |
||||
|---|---|---|---|---|---|
| 所在地 | 東京都八王子市諏訪町
この地域周辺の物件を見る |
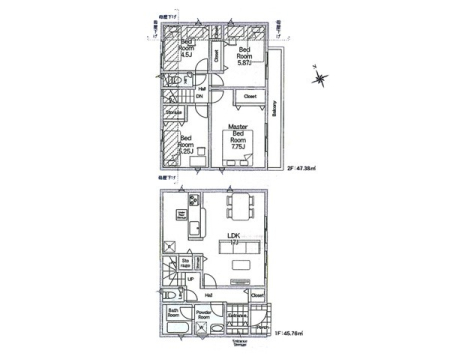
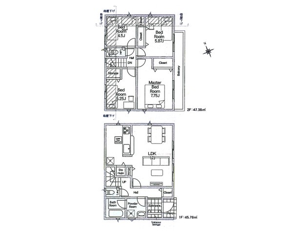
土地面積 | 125m² (37.81坪) | 建物面積 | 93.14u |
| 築年月 | 2025年12月築 | 間取り | 4LDK (-) | ||
| 交通 |
JR中央線 西八王子 バス18分 諏訪神社 停歩4分
JR中央線 八王子 バス26分 諏訪神社 停歩4分 |
||||
| 特徴 |
|
|---|---|
| セールスコメント |
| 採光面 | - | 構造/階数 | 木造/地上2階建 |
|---|---|---|---|
| 建ぺい率 | 40(%) | 容積率 | 80(%) |
| 駐車場 | 有 | 現況/引渡し | -/2025年12月下旬 |
| 土地権利 | 所有権 | 私道負担面積 | - |
| 接道状況 | 接道: 東南 公道 道路幅: 5m | 用途地域 |
第一種低層住居専用地域
|
| セットバック | なし | 法令上の制限 | 建築基準法22条区域 宅地造成工事規制区域内 第一種高度地区 元八王子北部地区地区計画 |
| 地目 | 宅地 | 地勢 | |
| 建築確認番号 | 第R07SHC113184号 | 都市計画 | 市街化区域 |
| 取引態様 | 仲介 | ||
| 情報更新日 | 2025年11月15日 | 次回更新日 | 2025年11月29日 |
| 小学校区 | 八王子市立上壱分方小学校 (東京都八王子市) この学区の他の物件を見る |
中学校区 | 四谷中学校 (東京都八王子市) この学区の他の物件を見る |
|---|
| 価格 | 万円 | ||
|---|---|---|---|
| 年利率 | % |
||
| ボーナス払い | 返済年数 | ||
| 頭金 | 直接入力する | 万円 | |

毎月のご返済額 |
ボーナス(×年2回) |
物件価格2,780万円 |
![]() |
![]() |
八王子市諏訪町
2780万円〜2950万円 |
-