八王子市丸山町第2 新築戸建 全2棟 東京都八王子市丸山町 |2,990万円の新築一戸建て|エムイーPLUS多摩
| 価格 | 2,990万円 ![]() |
||||
|---|---|---|---|---|---|
| 所在地 | 東京都八王子市丸山町
この地域周辺の物件を見る |
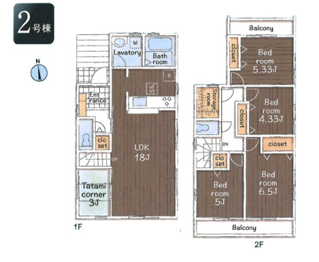
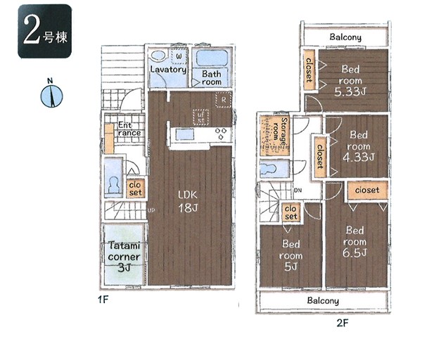
土地面積 | 123.27m² (37.28坪) | 建物面積 | 97.2u |
| 築年月 | 2025年10月築 | 間取り | 4SLDK (-) | ||
| 交通 |
JR中央線 日野 バス16分 宇津木台 停歩7分
JR中央線 八王子 バス19分 宇津木台 停歩7分 |
||||
| 特徴 |
|
|---|---|
| セールスコメント |
| 採光面 | - | 構造/階数 | 木造/地上2階建 |
|---|---|---|---|
| 建ぺい率 | 40(%) | 容積率 | 80(%) |
| 駐車場 | 有 | 現況/引渡し | 空家/即時 |
| 土地権利 | 所有権 | 私道負担面積 | - |
| 接道状況 | 接道: 北 公道 道路幅: 6m | 用途地域 |
第一種低層住居専用地域
|
| セットバック | なし | 法令上の制限 | - |
| 地目 | 宅地 | 地勢 | |
| 建築確認番号 | 第24UDI1W建09535号 | 都市計画 | 市街化区域 |
| 取引態様 | 仲介 | ||
| 情報更新日 | 2025年11月15日 | 次回更新日 | 2025年11月29日 |
| 小学校区 | 八王子市立宇津木台小学校 (東京都八王子市) この学区の他の物件を見る |
中学校区 | 石川中学校 (東京都八王子市) この学区の他の物件を見る |
|---|
| 価格 | 万円 | ||
|---|---|---|---|
| 年利率 | % |
||
| ボーナス払い | 返済年数 | ||
| 頭金 | 直接入力する | 万円 | |

毎月のご返済額 |
ボーナス(×年2回) |
物件価格2,990万円 |
-