町田市金井1丁目 新築戸建 全1棟 東京都町田市金井1丁目|6,380万円の新築一戸建て|エムイーPLUS多摩
| 価格 | 6,380万円 ![]() |
||||
|---|---|---|---|---|---|
| 所在地 | 東京都町田市金井1丁目
この地域周辺の物件を見る |
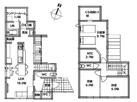
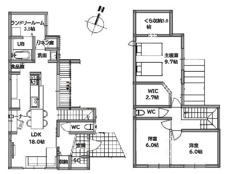
土地面積 | 106.4m² (32.18坪) | 建物面積 | 131.91u |
| 築年月 | 2025年11月築 | 間取り | 3SLDK (-) | ||
| 交通 |
小田急小田原線 町田 バス14分 金井小学校入口 停歩6分
小田急小田原線 玉川学園前 徒歩24分 |
||||
| 特徴 |
|
|---|---|
| セールスコメント |
| 採光面 | - | 構造/階数 | 木造/地上2階建 |
|---|---|---|---|
| 建ぺい率 | 50(%) | 容積率 | 100(%) |
| 駐車場 | 有 | 現況/引渡し | 空家/即時 |
| 土地権利 | 所有権 | 私道負担面積 | - |
| 接道状況 | 接道: 南 公道 道路幅: 6m 接道: 東 公道 道路幅: 9m |
用途地域 |
第一種中高層住居専用地域
|
| セットバック | なし | 法令上の制限 | - |
| 地目 | 宅地 | 地勢 | |
| 建築確認番号 | HPAー24−07152−1 | 都市計画 | 市街化区域 |
| 取引態様 | 仲介 | ||
| 情報更新日 | 2026年04月20日 | 次回更新日 | 2026年05月04日 |
| 小学校区 | 町田市立藤の台小学校 (東京都町田市) この学区の他の物件を見る |
中学校区 | 薬師中学校 (東京都町田市) この学区の他の物件を見る |
|---|
| 価格 | 万円 | ||
|---|---|---|---|
| 年利率 | % |
||
| ボーナス払い | 返済年数 | ||
| 頭金 | 直接入力する | 万円 | |

毎月のご返済額 |
ボーナス(×年2回) |
物件価格6,380万円 |
-