秦野市堀山下第8 新築戸建 全3棟 神奈川県秦野市堀山下 |3,380万円の新築一戸建て|エムイーPLUS多摩
| 価格 | 3,380万円値下がり ![]() |
||||
|---|---|---|---|---|---|
| 所在地 | 神奈川県秦野市堀山下
この地域周辺の物件を見る |
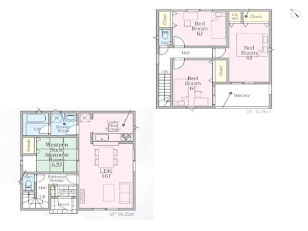
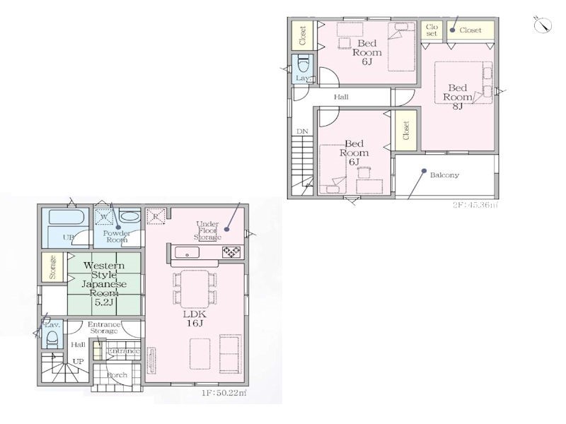
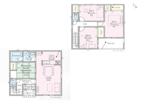
土地面積 | 195.66m² (59.18坪) | 建物面積 | 95.58u |
| 築年月 | 2026年1月築 | 間取り | 4LDK (-) | ||
| 交通 |
小田急小田原線 渋沢 バス7分 関 停歩2分
小田急小田原線 渋沢 徒歩24分 |
||||
| 特徴 |
|
|---|---|
| セールスコメント |
| 採光面 | - | 構造/階数 | 木造/地上2階建 |
|---|---|---|---|
| 建ぺい率 | 60(%) | 容積率 | 200(%) |
| 駐車場 | 有 | 現況/引渡し | -/2026年1月下旬 |
| 土地権利 | 所有権 | 私道負担面積 | - |
| 接道状況 | 接道: 南西 公道 道路幅: 4.7m | 用途地域 |
第一種中高層住居専用地域
|
| セットバック | なし | 法令上の制限 | 道路・北側斜線制限 敷地面積100平米以下 秦野市まちづくり条例 都市再生特別措置法 別途ルーフバルコニー6.48平米有 |
| 地目 | 宅地 | 地勢 | |
| 建築確認番号 | 第KBI-SGM25-10-3681号 | 都市計画 | 市街化区域 |
| 取引態様 | 仲介 | ||
| 情報更新日 | 2025年12月07日 | 次回更新日 | 2025年12月21日 |
| 小学校区 | 秦野市立西小学校 (神奈川県秦野市) この学区の他の物件を見る |
中学校区 | 西中学校 (神奈川県秦野市) この学区の他の物件を見る |
|---|
| 価格 | 万円 | ||
|---|---|---|---|
| 年利率 | % |
||
| ボーナス払い | 返済年数 | ||
| 頭金 | 直接入力する | 万円 | |

毎月のご返済額 |
ボーナス(×年2回) |
物件価格3,380万円 |
![]() |
![]() |
秦野市堀山下
3280万円〜3480万円 |
-