府中市四谷2丁目 新築戸建 全5棟 東京都府中市四谷2丁目|5,730万円の新築一戸建て|エムイーPLUS多摩
| 価格 | 5,730万円 ![]() |
||||
|---|---|---|---|---|---|
| 所在地 | 東京都府中市四谷2丁目
この地域周辺の物件を見る |
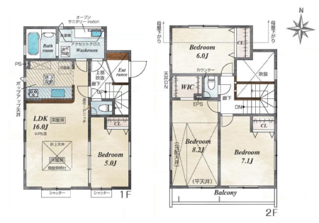
土地面積 | 129.77m² (39.25坪) | 建物面積 | 97.19u |
| 築年月 | 2026年1月築 | 間取り | 4LDK (-) | ||
| 交通 |
京王線 中河原 徒歩13分
|
||||
| 特徴 |
|
|---|---|
| セールスコメント |
| 採光面 | - | 構造/階数 | 木造/地上2階建 |
|---|---|---|---|
| 建ぺい率 | 40(%) | 容積率 | 80(%) |
| 駐車場 | 有 | 現況/引渡し | -/2026年1月下旬 |
| 土地権利 | 所有権 | 私道負担面積 | - |
| 接道状況 | 接道: 南 私道 道路幅: 4.5m | 用途地域 |
第一種低層住居専用地域
|
| セットバック | なし | 法令上の制限 | 開発道路109.44平米・未利用地7.05平米(各1/5ずつ持分有) 西部地区土地区画整理事業 土地面積129.77平米(協定道路2.75平米含む※円滑な車両通行を目的とした地役権設定有) |
| 地目 | 宅地 | 地勢 | 平坦 |
| 建築確認番号 | 第R07SHC107234号 | 都市計画 | 市街化区域 |
| 取引態様 | 仲介 | ||
| 情報更新日 | 2025年12月07日 | 次回更新日 | 2025年12月21日 |
| 小学校区 | 府中市立四谷小学校 (東京都府中市) この学区の他の物件を見る |
中学校区 | 府中第八中学校 (東京都府中市) この学区の他の物件を見る |
|---|
| 価格 | 万円 | ||
|---|---|---|---|
| 年利率 | % |
||
| ボーナス払い | 返済年数 | ||
| 頭金 | 直接入力する | 万円 | |

毎月のご返済額 |
ボーナス(×年2回) |
物件価格5,730万円 |
![]() |
![]() |
府中市四谷2丁目
5730万円〜5930万円 |
-