町田市南成瀬6丁目 新築戸建 全2棟 東京都町田市南成瀬6丁目|7,990万円の新築一戸建て|エムイーPLUS多摩
| 価格 | 7,990万円 ![]() |
||||
|---|---|---|---|---|---|
| 所在地 | 東京都町田市南成瀬6丁目
この地域周辺の物件を見る |
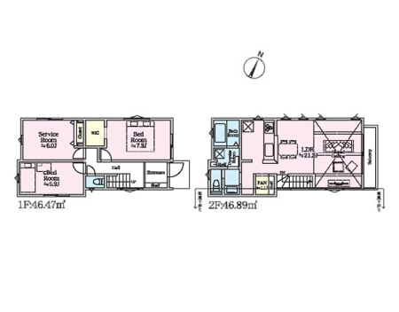
土地面積 | 162.55m² (49.17坪) | 建物面積 | 102.67u |
| 築年月 | 2026年5月築 | 間取り | 4LDK (-) | ||
| 交通 |
JR横浜線 成瀬 徒歩9分
東急田園都市線 つくし野 徒歩14分 |
||||
| 特徴 |
|
|---|---|
| セールスコメント |
| 採光面 | - | 構造/階数 | 木造/地上2階建 |
|---|---|---|---|
| 建ぺい率 | 50(%) | 容積率 | 100(%) |
| 駐車場 | 有 | 現況/引渡し | -/2026年5月下旬 |
| 土地権利 | 所有権 | 私道負担面積 | - |
| 接道状況 | 接道: 南 公道 道路幅: 5m | 用途地域 |
第一種低層住居専用地域
|
| セットバック | なし | 法令上の制限 | 22条区域 特定都市河川浸水被害対策法 景観法 第1種高度地区 宅地造成等工事規制区域 |
| 地目 | 宅地 | 地勢 | |
| 建築確認番号 | 第HPA−25−11487−1号 | 都市計画 | 市街化区域 |
| 取引態様 | 仲介 | ||
| 情報更新日 | 2026年04月20日 | 次回更新日 | 2026年05月04日 |
| 小学校区 | 町田市立南第二小学校 (東京都町田市) この学区の他の物件を見る |
中学校区 | 南成瀬中学校 (東京都町田市) この学区の他の物件を見る |
|---|
| 価格 | 万円 | ||
|---|---|---|---|
| 年利率 | % |
||
| ボーナス払い | 返済年数 | ||
| 頭金 | 直接入力する | 万円 | |

毎月のご返済額 |
ボーナス(×年2回) |
物件価格7,990万円 |
![]() |
![]() |
町田市南成瀬6丁目
7990万円 |
-