府中市朝日町1丁目 新築戸建 全3棟 東京都府中市朝日町1丁目|6,290万円の新築一戸建て|エムイーPLUS多摩
| 価格 | 6,290万円 ![]() |
||||
|---|---|---|---|---|---|
| 所在地 | 東京都府中市朝日町1丁目
この地域周辺の物件を見る |
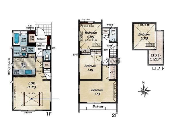
土地面積 | 104.41m² (31.58坪) | 建物面積 | 83.24u |
| 築年月 | 2026年3月築 | 間取り | 3LDK (-) | ||
| 交通 |
西武多摩川線 多磨 徒歩12分
京王線 武蔵野台 徒歩15分 |
||||
| 特徴 |
|
|---|---|
| セールスコメント |
| 採光面 | - | 構造/階数 | 木造/地上2階建 |
|---|---|---|---|
| 建ぺい率 | 40(%) | 容積率 | 80(%) |
| 駐車場 | 有 | 現況/引渡し | -/2026年3月下旬 |
| 土地権利 | 所有権 | 私道負担面積 | - |
| 接道状況 | 接道: 北 公道 道路幅: 5.4m | 用途地域 |
第一種低層住居専用地域
|
| セットバック | なし | 法令上の制限 | 第一種高度地区 景観法 航空法 宅地造成及び特定盛土等規制法 |
| 地目 | 宅地 | 地勢 | |
| 建築確認番号 | 第R07SHC120592号 | 都市計画 | - |
| 取引態様 | 仲介 | ||
| 情報更新日 | 2025年12月11日 | 次回更新日 | 2025年12月25日 |
| 小学校区 | 府中市立白糸台小学校 (東京都府中市) この学区の他の物件を見る |
中学校区 | 府中第二中学校 (東京都府中市) この学区の他の物件を見る |
|---|
| 価格 | 万円 | ||
|---|---|---|---|
| 年利率 | % |
||
| ボーナス払い | 返済年数 | ||
| 頭金 | 直接入力する | 万円 | |

毎月のご返済額 |
ボーナス(×年2回) |
物件価格6,290万円 |
![]() |
![]() |
府中市朝日町1丁目
6290万円〜6750万円 |
-