厚木市林3丁目 新築戸建 全1棟 神奈川県厚木市林3丁目|4,180万円の新築一戸建て|エムイーPLUS多摩
| 価格 | 4,180万円 ![]() |
||||
|---|---|---|---|---|---|
| 所在地 | 神奈川県厚木市林3丁目
この地域周辺の物件を見る |
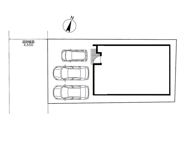
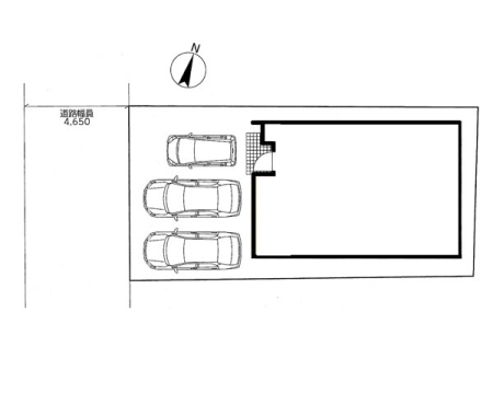
土地面積 | 115.78m² (35.02坪) | 建物面積 | 4.65u |
| 築年月 | 2025年11月築 | 間取り | 4LDK (-) | ||
| 交通 |
小田急小田原線 本厚木 相模線厚木駅 車分
JR相模線 厚木 |
||||
| 特徴 |
|
|---|---|
| セールスコメント |
| 採光面 | - | 構造/階数 | 木造/地上2階建 |
|---|---|---|---|
| 建ぺい率 | 50(%) | 容積率 | 100(%) |
| 駐車場 | - | 現況/引渡し | 空家/即時 |
| 土地権利 | 所有権 | 私道負担面積 | - |
| 接道状況 | 接道: 西 私道 道路幅: 4.6m | 用途地域 |
第一種低層住居専用地域
|
| セットバック | なし | 法令上の制限 | 道路斜線1:1.25北側斜線5+1:1.25 |
| 地目 | 宅地 | 地勢 | |
| 建築確認番号 | 第25KAK建確00753号 | 都市計画 | 市街化区域 |
| 取引態様 | 仲介 | ||
| 情報更新日 | 2025年12月07日 | 次回更新日 | 2025年12月21日 |
| 小学校区 | 厚木市立緑ケ丘小学校 (神奈川県厚木市) この学区の他の物件を見る |
中学校区 | 林中学校 (神奈川県厚木市) この学区の他の物件を見る |
|---|
| 価格 | 万円 | ||
|---|---|---|---|
| 年利率 | % |
||
| ボーナス払い | 返済年数 | ||
| 頭金 | 直接入力する | 万円 | |

毎月のご返済額 |
ボーナス(×年2回) |
物件価格4,180万円 |
-