藤沢市片瀬4丁目6期 新築戸建 全2棟 神奈川県藤沢市片瀬4丁目|7,949万円の新築一戸建て|エムイーPLUS多摩
| 価格 | 7,949万円値下がり ![]() |
||||
|---|---|---|---|---|---|
| 所在地 | 神奈川県藤沢市片瀬4丁目
この地域周辺の物件を見る |
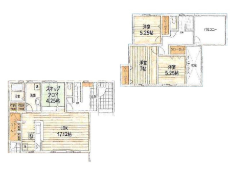
土地面積 | 141.01m² (42.65坪) | 建物面積 | 105.7u |
| 築年月 | 2026年2月築 | 間取り | 4LDK (-) | ||
| 交通 |
江ノ島電鉄 湘南海岸公園 徒歩4分
江ノ島電鉄 鵠沼 徒歩10分 |
||||
| 特徴 |
|
|---|---|
| セールスコメント | 津波防災地域づくりに関する法律 津波災害警戒区域 |
| 採光面 | - | 構造/階数 | 木造/地上2階建 |
|---|---|---|---|
| 建ぺい率 | 50(%) | 容積率 | 80(%) |
| 駐車場 | 有 | 現況/引渡し | 空家/即時 |
| 土地権利 | 所有権 | 私道負担面積 | - |
| 接道状況 | 接道: 北東 公道 道路幅: 4.2m | 用途地域 |
第一種低層住居専用地域
|
| セットバック | なし | 法令上の制限 | 法22条区域 高さ制限 斜線制限 藤沢市緑の保全及び緑化の推進に関する条例 3・5・1片瀬辻堂線 3・3・2横浜藤沢線 藤沢市景観条例 景観計画区域 立地適正化計画 |
| 地目 | 山林 | 地勢 | 平坦 |
| 建築確認番号 | 第25UDI1W建07203号 | 都市計画 | 市街化区域 |
| 取引態様 | 仲介 | ||
| 情報更新日 | 2026年04月20日 | 次回更新日 | 2026年05月04日 |
| 小学校区 | 藤沢市立片瀬小学校 (神奈川県藤沢市) この学区の他の物件を見る |
中学校区 | 片瀬中学校 (神奈川県藤沢市) この学区の他の物件を見る |
|---|
| 価格 | 万円 | ||
|---|---|---|---|
| 年利率 | % |
||
| ボーナス払い | 返済年数 | ||
| 頭金 | 直接入力する | 万円 | |

毎月のご返済額 |
ボーナス(×年2回) |
物件価格7,949万円 |
![]() |
![]() |
藤沢市片瀬4丁目
7949万円〜8848万円 |
-