国分寺市本多3丁目 新築戸建 全3棟 東京都国分寺市本多3丁目|5,980万円の新築一戸建て|エムイーPLUS多摩
| 価格 | 5,980万円 ![]() |
||||
|---|---|---|---|---|---|
| 所在地 | 東京都国分寺市本多3丁目
この地域周辺の物件を見る |
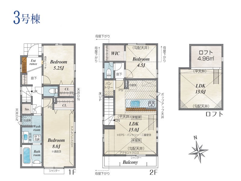
土地面積 | 110.13m² (33.31坪) | 建物面積 | 81.14u |
| 築年月 | 2026年4月築 | 間取り | 3LDK (-) | ||
| 交通 |
JR中央線 国分寺 徒歩17分
西武国分寺線 国分寺 徒歩17分 |
||||
| 特徴 |
|
|---|---|
| セールスコメント |
| 採光面 | - | 構造/階数 | 木造/地上2階建 |
|---|---|---|---|
| 建ぺい率 | 50(%) | 容積率 | 100(%) |
| 駐車場 | 有 | 現況/引渡し | -/2026年4月下旬 |
| 土地権利 | 所有権 | 私道負担面積 | - |
| 接道状況 | 接道: 西 公道 道路幅: 4.5m | 用途地域 |
第一種低層住居専用地域
|
| セットバック | なし | 法令上の制限 | 第一種高度地区、景観法、航空法、準防火地域 |
| 地目 | 宅地 | 地勢 | 平坦 |
| 建築確認番号 | 第R07SHC122636号 | 都市計画 | 市街化区域 |
| 取引態様 | 仲介 | ||
| 情報更新日 | 2026年01月13日 | 次回更新日 | 2026年01月27日 |
| 小学校区 | 国分寺市立第三小学校 (東京都国分寺市) この学区の他の物件を見る |
中学校区 | 第二中学校 (東京都国分寺市) この学区の他の物件を見る |
|---|
| 価格 | 万円 | ||
|---|---|---|---|
| 年利率 | % |
||
| ボーナス払い | 返済年数 | ||
| 頭金 | 直接入力する | 万円 | |

毎月のご返済額 |
ボーナス(×年2回) |
物件価格5,980万円 |
![]() |
![]() |
国分寺市本多3丁目
5980万円〜6280万円 |
-