八王子市追分町1期 新築戸建 全1棟 東京都八王子市追分町 |5,799万円の新築一戸建て|エムイーPLUS多摩
| 価格 | 5,799万円 ![]() |
||||
|---|---|---|---|---|---|
| 所在地 | 東京都八王子市追分町
この地域周辺の物件を見る |
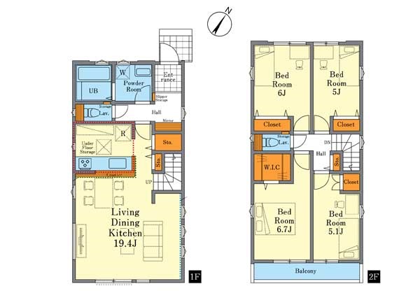
土地面積 | 135.16m² (40.88坪) | 建物面積 | 100.2u |
| 築年月 | 2026年4月築 | 間取り | 4LDK (-) | ||
| 交通 |
JR中央線 西八王子 徒歩12分
JR中央線 八王子 バス11分 追分 停歩3分 |
||||
| 特徴 |
|
|---|---|
| セールスコメント |
| 採光面 | - | 構造/階数 | 木造/地上2階建 |
|---|---|---|---|
| 建ぺい率 | 60(%) | 容積率 | 200(%) |
| 駐車場 | 有 | 現況/引渡し | -/2026年4月下旬 |
| 土地権利 | 所有権 | 私道負担面積 | - |
| 接道状況 | 接道: 北西 公道 道路幅: 4m | 用途地域 |
準工業地域
|
| セットバック | なし | 法令上の制限 | 第二種高度地区 宅地造成工事規制区域 くらしあんしん24(2年限定) |
| 地目 | 宅地 | 地勢 | |
| 建築確認番号 | 第25UDI1W09773号 | 都市計画 | 市街化区域 |
| 取引態様 | 仲介 | ||
| 情報更新日 | 2026年01月13日 | 次回更新日 | 2026年01月27日 |
| 小学校区 | 八王子市立第二小学校 (東京都八王子市) この学区の他の物件を見る |
中学校区 | 第四中学校 (東京都八王子市) この学区の他の物件を見る |
|---|
| 価格 | 万円 | ||
|---|---|---|---|
| 年利率 | % |
||
| ボーナス払い | 返済年数 | ||
| 頭金 | 直接入力する | 万円 | |

毎月のご返済額 |
ボーナス(×年2回) |
物件価格5,799万円 |
-