八王子市楢原町 新築戸建 全11棟 東京都八王子市楢原町 |4,080万円の新築一戸建て|エムイーPLUS多摩
| 価格 | 4,080万円 ![]() |
||||
|---|---|---|---|---|---|
| 所在地 | 東京都八王子市楢原町
この地域周辺の物件を見る |
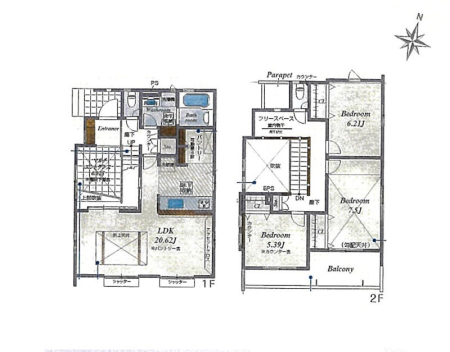
土地面積 | 151.01m² (45.68坪) | 建物面積 | 107.94u |
| 築年月 | 2026年2月築 | 間取り | 4LDK (-) | ||
| 交通 |
JR横浜線 八王子 中央線西八王子駅 車分
JR中央線 西八王子 |
||||
| 特徴 |
|
|---|---|
| セールスコメント |
| 採光面 | - | 構造/階数 | 木造/地上2階建 |
|---|---|---|---|
| 建ぺい率 | 40(%) | 容積率 | 80(%) |
| 駐車場 | 有 | 現況/引渡し | -/2026年2月下旬 |
| 土地権利 | 所有権 | 私道負担面積 | - |
| 接道状況 | 接道: 東南 公道 道路幅: 5m 接道: 南西 公道 道路幅: 5m |
用途地域 |
第一種低層住居専用地域
|
| セットバック | なし | 法令上の制限 | 第一種高度地区 景観法 航空法 宅地造成等規制法 |
| 地目 | 宅地 | 地勢 | |
| 建築確認番号 | 第R07SHC114461号 | 都市計画 | 市街化区域 |
| 取引態様 | 仲介 | ||
| 情報更新日 | 2026年01月13日 | 次回更新日 | 2026年01月27日 |
| 小学校区 | 八王子市立楢原小学校 (東京都八王子市) この学区の他の物件を見る |
中学校区 | 楢原中学校 (東京都八王子市) この学区の他の物件を見る |
|---|
| 価格 | 万円 | ||
|---|---|---|---|
| 年利率 | % |
||
| ボーナス払い | 返済年数 | ||
| 頭金 | 直接入力する | 万円 | |

毎月のご返済額 |
ボーナス(×年2回) |
物件価格4,080万円 |
![]() |
![]() |
八王子市楢原町
3530万円〜4080万円 |
-