藤沢市辻堂5丁目 新築戸建 全1棟 神奈川県藤沢市辻堂5丁目|8,580万円の新築一戸建て|エムイーPLUS多摩
| 価格 | 8,580万円 ![]() |
||||
|---|---|---|---|---|---|
| 所在地 | 神奈川県藤沢市辻堂5丁目
この地域周辺の物件を見る |
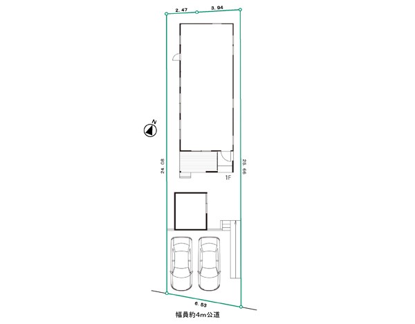
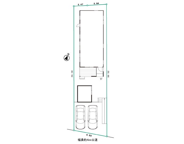
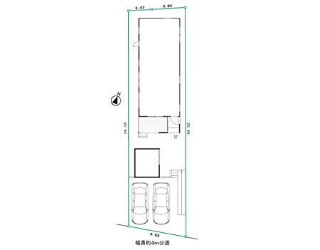
土地面積 | 159.41m² (48.22坪) | 建物面積 | 101.85u |
| 築年月 | 2026年2月築 | 間取り | 3LDK (-) | ||
| 交通 |
JR東海道本線 辻堂 江ノ島線鵠沼海岸駅 車分
小田急江ノ島線 鵠沼海岸 |
||||
| 特徴 |
|
|---|---|
| セールスコメント |
| 採光面 | - | 構造/階数 | 木造/地上2階建 |
|---|---|---|---|
| 建ぺい率 | 50(%) | 容積率 | 80(%) |
| 駐車場 | 有 | 現況/引渡し | -/2026年2月下旬 |
| 土地権利 | 所有権 | 私道負担面積 | - |
| 接道状況 | 接道: 南 公道 道路幅: 4m | 用途地域 |
第一種低層住居専用地域
|
| セットバック | なし | 法令上の制限 | 建築基準法22条 |
| 地目 | 宅地 | 地勢 | |
| 建築確認番号 | 第25KAK建確01149号 | 都市計画 | 市街化区域 |
| 取引態様 | 仲介 | ||
| 情報更新日 | 2026年01月24日 | 次回更新日 | 2026年02月07日 |
| 小学校区 | 藤沢市立高砂小学校 (神奈川県藤沢市) この学区の他の物件を見る |
中学校区 | 高浜中学校 (神奈川県藤沢市) この学区の他の物件を見る |
|---|
| 価格 | 万円 | ||
|---|---|---|---|
| 年利率 | % |
||
| ボーナス払い | 返済年数 | ||
| 頭金 | 直接入力する | 万円 | |

毎月のご返済額 |
ボーナス(×年2回) |
物件価格8,580万円 |
-