川崎市川崎宮前区けやき平 新築戸建 全4棟 神奈川県川崎市宮前区けやき平 |6,580万円の新築一戸建て|エムイーPLUS多摩
| 価格 | 6,580万円 ![]() |
||||
|---|---|---|---|---|---|
| 所在地 | 神奈川県川崎市宮前区けやき平
この地域周辺の物件を見る |
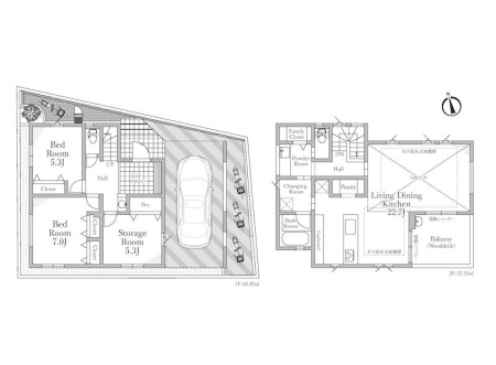
土地面積 | 121.23m² (36.67坪) | 建物面積 | 101.43u |
| 築年月 | 2025年11月築 | 間取り | 4LDK (-) | ||
| 交通 |
東急田園都市線 宮前平 徒歩14分
東急田園都市線 鷺沼 徒歩23分 |
||||
| 特徴 |
|
|---|---|
| セールスコメント |
| 採光面 | - | 構造/階数 | 木造/地上2階建 |
|---|---|---|---|
| 建ぺい率 | 60(%) | 容積率 | 200(%) |
| 駐車場 | 有 | 現況/引渡し | 空家/即時 |
| 土地権利 | 所有権 | 私道負担面積 | - |
| 接道状況 | 接道: 東南 公道 道路幅: 6.4m | 用途地域 |
第一種中高層住居専用地域
|
| セットバック | なし | 法令上の制限 | 準防火地域 第二種高度地区 高さ制限15m 北側制限7.5m+1.25/1 日影規制3h/2h/4m 宅地造成工事規制区域 法22条による区域 景観計画区域 |
| 地目 | 宅地 | 地勢 | |
| 建築確認番号 | 第HPA-25-03915-1号 | 都市計画 | 市街化区域 |
| 取引態様 | 仲介 | ||
| 情報更新日 | 2026年03月15日 | 次回更新日 | 2026年03月29日 |
| 小学校区 | 川崎市立平小学校 (神奈川県川崎市) この学区の他の物件を見る |
中学校区 | 向丘中学校 (神奈川県川崎市) この学区の他の物件を見る |
|---|
| 価格 | 万円 | ||
|---|---|---|---|
| 年利率 | % |
||
| ボーナス払い | 返済年数 | ||
| 頭金 | 直接入力する | 万円 | |

毎月のご返済額 |
ボーナス(×年2回) |
物件価格6,580万円 |
![]() |
![]() |
川崎市宮前区けやき平
6480万円〜6580万円 |
-