茅ヶ崎市松尾2期 新築戸建 全2棟 神奈川県茅ヶ崎市松尾 |3,480万円の新築一戸建て|エムイーPLUS多摩
| 価格 | 3,480万円 ![]() |
||||
|---|---|---|---|---|---|
| 所在地 | 神奈川県茅ヶ崎市松尾
この地域周辺の物件を見る |
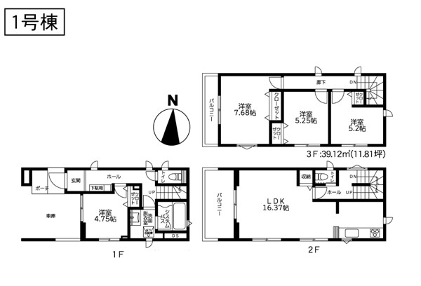
土地面積 | 65.87m² (19.92坪) | 建物面積 | 113.96u |
| 築年月 | 2026年8月築 | 間取り | 4LDK (-) | ||
| 交通 |
JR東海道本線 東海道本線平塚駅 車分
JR東海道本線 平塚 |
||||
| 特徴 |
|
|---|---|
| セールスコメント | 告知事項:2020年6月頃旧建物にて前所有者の親族が自殺 お祓い済 |
| 採光面 | - | 構造/階数 | 木造/地上3階建 |
|---|---|---|---|
| 建ぺい率 | 60(%) | 容積率 | 200(%) |
| 駐車場 | 有 | 現況/引渡し | -/2026年8月下旬 |
| 土地権利 | 所有権 | 私道負担面積 | - |
| 接道状況 | 接道: 西 公道 道路幅: 3.7m | 用途地域 |
第一種中高層住居専用地域
|
| セットバック | あり | 法令上の制限 | 第一種高度地区 洪水ハザード浸水深1から3m 高潮ハザード浸水深0.3から0.5m 津波ハザード浸水深0.15から0.5mに該当 SB部分は市に移管予定 |
| 地目 | 宅地 | 地勢 | |
| 建築確認番号 | 第25UDI1K建01953 | 都市計画 | 市街化区域 |
| 取引態様 | 仲介 | ||
| 情報更新日 | 2026年03月15日 | 次回更新日 | 2026年03月29日 |
| 小学校区 | 茅ヶ崎市立柳島小学校 (神奈川県茅ヶ崎市) この学区の他の物件を見る |
中学校区 | 中島中学校 (神奈川県茅ヶ崎市) この学区の他の物件を見る |
|---|
| 価格 | 万円 | ||
|---|---|---|---|
| 年利率 | % |
||
| ボーナス払い | 返済年数 | ||
| 頭金 | 直接入力する | 万円 | |

毎月のご返済額 |
ボーナス(×年2回) |
物件価格3,480万円 |
![]() |
![]() |
茅ヶ崎市松尾
3480万円〜3880万円 |
-