足柄上郡大井町金子 新築戸建 全8棟 神奈川県足柄上郡大井町金子 |2,490万円の新築一戸建て|エムイーPLUS多摩
| 価格 | 2,490万円 ![]() |
||||
|---|---|---|---|---|---|
| 所在地 | 神奈川県足柄上郡大井町金子
この地域周辺の物件を見る |
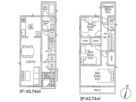
土地面積 | 174.96m² (52.92坪) | 建物面積 | 103.09u |
| 築年月 | 2026年9月築 | 間取り | 4LDK (-) | ||
| 交通 |
JR御殿場線 相模金子 徒歩10分
小田急小田原線 新松田 徒歩24分 |
||||
| 特徴 |
|
|---|---|
| セールスコメント |
| 採光面 | - | 構造/階数 | 木造/地上2階建 |
|---|---|---|---|
| 建ぺい率 | 60(%) | 容積率 | 200(%) |
| 駐車場 | 有 | 現況/引渡し | -/2026年9月下旬 |
| 土地権利 | 所有権 | 私道負担面積 | - |
| 接道状況 | 接道: 北東 私道 道路幅: 5m | 用途地域 |
第一種中高層住居専用地域
|
| セットバック | なし | 法令上の制限 | 用途地域:一部第一種低層 宅地造成および特定盛土等規制法 敷地面積110平米 進入部分の道路占有許可取得済 |
| 地目 | 宅地 | 地勢 | |
| 建築確認番号 | 第25UDI1W建13343号 | 都市計画 | 市街化区域 |
| 取引態様 | 仲介 | ||
| 情報更新日 | 2026年04月24日 | 次回更新日 | 2026年05月08日 |
| 小学校区 | 大井町立大井小学校 (神奈川県足柄上郡大井町) この学区の他の物件を見る |
中学校区 | 湘光中学校 (神奈川県足柄上郡大井町) この学区の他の物件を見る |
|---|
| 価格 | 万円 | ||
|---|---|---|---|
| 年利率 | % |
||
| ボーナス払い | 返済年数 | ||
| 頭金 | 直接入力する | 万円 | |

毎月のご返済額 |
ボーナス(×年2回) |
物件価格2,490万円 |
![]() |
![]() |
足柄上郡大井町金子
2490万円〜2590万円 |
-