川崎市川崎区小田3丁目 新築戸建 全1棟 神奈川県川崎市川崎区小田3丁目|6,880万円の新築一戸建て|エムイーPLUS多摩
| 価格 | 6,880万円 ![]() |
||||
|---|---|---|---|---|---|
| 所在地 | 神奈川県川崎市川崎区小田3丁目
この地域周辺の物件を見る |
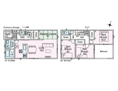
土地面積 | 84.3m² (25.5坪) | 建物面積 | 94.43u |
| 築年月 | 2026年8月築 | 間取り | 3LDK (-) | ||
| 交通 |
JR南武線 川崎新町 徒歩13分
|
||||
| 特徴 |
|
|---|---|
| セールスコメント |
| 採光面 | - | 構造/階数 | 木造/地上2階建 |
|---|---|---|---|
| 建ぺい率 | 60(%) | 容積率 | 160(%) |
| 駐車場 | 有 | 現況/引渡し | -/2026年8月下旬 |
| 土地権利 | 所有権 | 私道負担面積 | - |
| 接道状況 | 接道: 東 公道 道路幅: 4m | 用途地域 |
第二種住居地域
|
| セットバック | あり | 法令上の制限 | 水道管は南側隣地、ガス管は西側隣地をそれぞれ経由して引き込まれています |
| 地目 | - | 地勢 | |
| 建築確認番号 | 第25UDI1T建04020号 | 都市計画 | - |
| 取引態様 | 仲介 | ||
| 情報更新日 | 2026年04月28日 | 次回更新日 | 2026年05月12日 |
| 小学校区 | 川崎市立東小田小学校 (神奈川県川崎市) この学区の他の物件を見る |
中学校区 | 田島中学校 (神奈川県川崎市) この学区の他の物件を見る |
|---|
| 価格 | 万円 | ||
|---|---|---|---|
| 年利率 | % |
||
| ボーナス払い | 返済年数 | ||
| 頭金 | 直接入力する | 万円 | |

毎月のご返済額 |
ボーナス(×年2回) |
物件価格6,880万円 |
-