横浜市旭区今宿西町第6 新築戸建 全2棟 神奈川県横浜市旭区今宿西町 |4,780万円の新築一戸建て|エムイーPLUS多摩
| 価格 | 4,780万円 ![]() |
||||
|---|---|---|---|---|---|
| 所在地 | 神奈川県横浜市旭区今宿西町
この地域周辺の物件を見る |
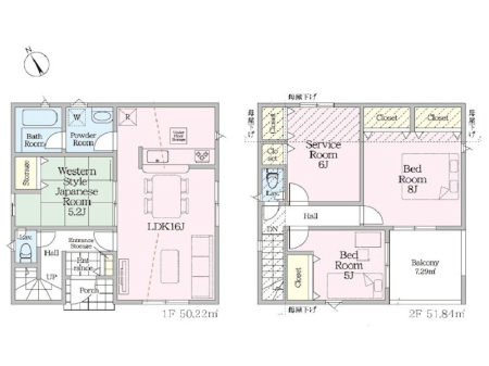
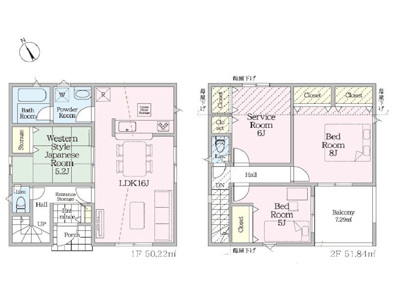
土地面積 | 157.8m² (47.73坪) | 建物面積 | 94.77u |
| 築年月 | 2026年6月築 | 間取り | 3SLDK (-) | ||
| 交通 |
相鉄本線 相模鉄道線二俣川駅 車分
相鉄本線 二俣川 |
||||
| 特徴 |
|
|---|---|
| セールスコメント | 都市計画:市街化調整区域(建築許可:調整区域につき建築許可要) |
| 採光面 | - | 構造/階数 | 木造/地上2階建 |
|---|---|---|---|
| 建ぺい率 | 50(%) | 容積率 | 80(%) |
| 駐車場 | 有 | 現況/引渡し | -/2026年6月下旬 |
| 土地権利 | 所有権 | 私道負担面積 | - |
| 接道状況 | 接道: 南西 公道 道路幅: 4.4m 接道: 東南 公道 道路幅: 3.4m |
用途地域 |
指定なし
|
| セットバック | あり | 法令上の制限 | 法第22条指定地区 第1種高度地区 宅地造成及び特定盛土等規制法 別途ルーフバルコニー7.29平米有 セットバック持分9.23平米有 敷地内に電柱及び支線が入る場合があります。 |
| 地目 | 宅地 | 地勢 | |
| 建築確認番号 | 第R07SHC122169号 | 都市計画 | 市街化調整区域 |
| 取引態様 | 仲介 | ||
| 情報更新日 | 2026年04月12日 | 次回更新日 | 2026年04月26日 |
| 小学校区 | () |
中学校区 | () |
|---|
| 価格 | 万円 | ||
|---|---|---|---|
| 年利率 | % |
||
| ボーナス払い | 返済年数 | ||
| 頭金 | 直接入力する | 万円 | |

毎月のご返済額 |
ボーナス(×年2回) |
物件価格4,780万円 |
-