横須賀市衣笠栄町3丁目 新築戸建 全6棟 神奈川県横須賀市衣笠栄町3丁目|4,280万円の新築一戸建て|エムイーPLUS多摩
| 価格 | 4,280万円 ![]() |
||||
|---|---|---|---|---|---|
| 所在地 | 神奈川県横須賀市衣笠栄町3丁目
この地域周辺の物件を見る |
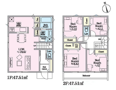
土地面積 | 100.73m² (30.47坪) | 建物面積 | 94.91u |
| 築年月 | 2026年6月築 | 間取り | 4LDK (-) | ||
| 交通 |
JR横須賀線 衣笠 京浜急行本線汐入駅 車分
京急本線 汐入 |
||||
| 特徴 |
|
|---|---|
| セールスコメント |
| 採光面 | - | 構造/階数 | 木造/地上2階建 |
|---|---|---|---|
| 建ぺい率 | 60(%) | 容積率 | 200(%) |
| 駐車場 | 有 | 現況/引渡し | -/2026年6月下旬 |
| 土地権利 | 所有権 | 私道負担面積 | - |
| 接道状況 | 接道: 東南 公道 道路幅: 6m | 用途地域 |
第一種住居地域
|
| セットバック | なし | 法令上の制限 | 第1種高度地区 |
| 地目 | - | 地勢 | |
| 建築確認番号 | 第25KAK建確02251号 | 都市計画 | 市街化区域 |
| 取引態様 | 仲介 | ||
| 情報更新日 | 2026年05月02日 | 次回更新日 | 2026年05月16日 |
| 小学校区 | 横須賀市立城北小学校 (神奈川県横須賀市) この学区の他の物件を見る |
中学校区 | 衣笠中学校 (神奈川県横須賀市) この学区の他の物件を見る |
|---|
| 価格 | 万円 | ||
|---|---|---|---|
| 年利率 | % |
||
| ボーナス払い | 返済年数 | ||
| 頭金 | 直接入力する | 万円 | |

毎月のご返済額 |
ボーナス(×年2回) |
物件価格4,280万円 |
![]() |
![]() |
横須賀市衣笠栄町3丁目
3980万円〜4380万円 |
-