平塚市立野町2期 新築戸建 全2棟 神奈川県平塚市立野町 |3,750万円の新築一戸建て|エムイーPLUS多摩
| 価格 | 3,750万円 ![]() |
||||
|---|---|---|---|---|---|
| 所在地 | 神奈川県平塚市立野町
この地域周辺の物件を見る |
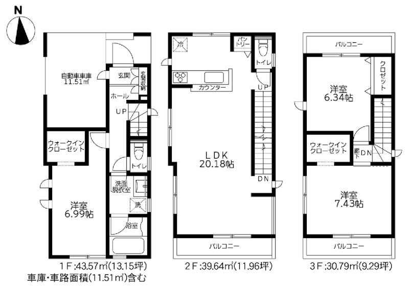
土地面積 | 64.24m² (19.43坪) | 建物面積 | 114u |
| 築年月 | 2026年10月築 | 間取り | 3LDK (-) | ||
| 交通 |
JR東海道本線 平塚 東海道本線大磯駅 車分
JR東海道本線 大磯 |
||||
| 特徴 |
|
|---|---|
| セールスコメント |
| 採光面 | - | 構造/階数 | 木造/地上3階建 |
|---|---|---|---|
| 建ぺい率 | 80(%) | 容積率 | 200(%) |
| 駐車場 | 有 | 現況/引渡し | -/2026年10月下旬 |
| 土地権利 | 所有権 | 私道負担面積 | - |
| 接道状況 | 接道: 北 公道 道路幅: 3.8m 接道: 西 公道 道路幅: 3.2m |
用途地域 |
近隣商業地域
|
| セットバック | あり | 法令上の制限 | 準防火地域 第三種高度地区 第二種高度地区 宅地造成および特定盛土等規制法 セットバック部分11.41平米は市に移管予定です |
| 地目 | 宅地 | 地勢 | |
| 建築確認番号 | 第KBI−SGM26−10−0062号 | 都市計画 | 市街化区域 |
| 取引態様 | 仲介 | ||
| 情報更新日 | 2026年04月15日 | 次回更新日 | 2026年04月29日 |
| 小学校区 | 平塚市立崇善小学校 (神奈川県平塚市) この学区の他の物件を見る |
中学校区 | 江陽中学校 (神奈川県平塚市) この学区の他の物件を見る |
|---|
| 価格 | 万円 | ||
|---|---|---|---|
| 年利率 | % |
||
| ボーナス払い | 返済年数 | ||
| 頭金 | 直接入力する | 万円 | |

毎月のご返済額 |
ボーナス(×年2回) |
物件価格3,750万円 |
![]() |
![]() |
平塚市立野町
3680万円〜3750万円 |
-