八王子市石川町 新築戸建 全16棟 東京都八王子市石川町 |4,380万円の新築一戸建て|エムイーPLUS多摩
| 価格 | 4,380万円 ![]() |
||||
|---|---|---|---|---|---|
| 所在地 | 東京都八王子市石川町
この地域周辺の物件を見る |
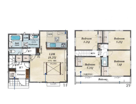
土地面積 | 140m² (42.35坪) | 建物面積 | 103.51u |
| 築年月 | 2026年6月築 | 間取り | 5LDK (-) | ||
| 交通 |
JR八高線 北八王子 徒歩19分
JR中央線 日野 バス11分 石川町東 停歩3分 |
||||
| 特徴 |
|
|---|---|
| セールスコメント | 開発区域内新設道路5.0メートル私道 |
| 採光面 | - | 構造/階数 | 木造/地上2階建 |
|---|---|---|---|
| 建ぺい率 | 60(%) | 容積率 | 200(%) |
| 駐車場 | 有 | 現況/引渡し | -/2026年6月下旬 |
| 土地権利 | 所有権 | 私道負担面積 | - |
| 接道状況 | 接道: 南 私道 道路幅: 5m | 用途地域 |
準工業地域
|
| セットバック | なし | 法令上の制限 | 第二種高度地区 準防火地域 国土利用計画法 景観法 航空法 宅地造成等規制法 生産緑地法 農地法 文化財保護法 私道持分あり(226.60平米×1/24、453.73平米×1/18) |
| 地目 | 宅地 | 地勢 | |
| 建築確認番号 | 第R07SHC122862号 | 都市計画 | 市街化区域 |
| 取引態様 | 仲介 | ||
| 情報更新日 | 2026年05月09日 | 次回更新日 | 2026年05月23日 |
| 小学校区 | 八王子市立第八小学校 (東京都八王子市) この学区の他の物件を見る |
中学校区 | 第一中学校 (東京都八王子市) この学区の他の物件を見る |
|---|
| 価格 | 万円 | ||
|---|---|---|---|
| 年利率 | % |
||
| ボーナス払い | 返済年数 | ||
| 頭金 | 直接入力する | 万円 | |

毎月のご返済額 |
ボーナス(×年2回) |
物件価格4,380万円 |
![]() |
![]() |
八王子市石川町
3490万円〜4580万円 |
-