横浜市青葉区もみの木台 新築戸建 全1棟 神奈川県横浜市青葉区もみの木台 |6,380万円の新築一戸建て|エムイーPLUS多摩
| 価格 | 6,380万円 ![]() |
||||
|---|---|---|---|---|---|
| 所在地 | 神奈川県横浜市青葉区もみの木台
この地域周辺の物件を見る |
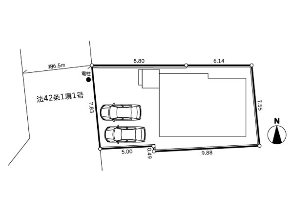
土地面積 | 115.53m² (34.94坪) | 建物面積 | 91.91u |
| 築年月 | 2026年10月築 | 間取り | 3LDK (-) | ||
| 交通 |
東急田園都市線 青葉台 田園都市線あざみ野駅 車分
東急田園都市線 あざみ野 |
||||
| 特徴 |
|
|---|---|
| セールスコメント |
| 採光面 | - | 構造/階数 | 木造/地上2階建 |
|---|---|---|---|
| 建ぺい率 | 50(%) | 容積率 | 80(%) |
| 駐車場 | 有 | 現況/引渡し | -/2026年10月下旬 |
| 土地権利 | 所有権 | 私道負担面積 | - |
| 接道状況 | 接道: 西 公道 道路幅: 6.5m | 用途地域 |
第一種低層住居専用地域
|
| セットバック | なし | 法令上の制限 | 法22条区域 第一種高度地区 高さの制限10m 敷地面積125平米以上 建築物再生エネルギー利用促進区域 宅地造成及び特定盛土等規制法 内水ハザード浸水深:0.2m-0.5m(本地北西側一部該当) |
| 地目 | 宅地 | 地勢 | |
| 建築確認番号 | 第25UDI1K建02611号 | 都市計画 | 市街化区域 |
| 取引態様 | 仲介 | ||
| 情報更新日 | 2026年05月10日 | 次回更新日 | 2026年05月24日 |
| 小学校区 | 横浜市立嶮山小学校 (神奈川県横浜市) この学区の他の物件を見る |
中学校区 | すすき野中学校 (神奈川県横浜市) この学区の他の物件を見る |
|---|
| 価格 | 万円 | ||
|---|---|---|---|
| 年利率 | % |
||
| ボーナス払い | 返済年数 | ||
| 頭金 | 直接入力する | 万円 | |

毎月のご返済額 |
ボーナス(×年2回) |
物件価格6,380万円 |
-