大和市中央林間西5丁目 新築戸建 全8棟 神奈川県大和市中央林間西5丁目|6,930万円の新築一戸建て|エムイーPLUS多摩
| 価格 | 6,930万円 ![]() |
||||
|---|---|---|---|---|---|
| 所在地 | 神奈川県大和市中央林間西5丁目
この地域周辺の物件を見る |
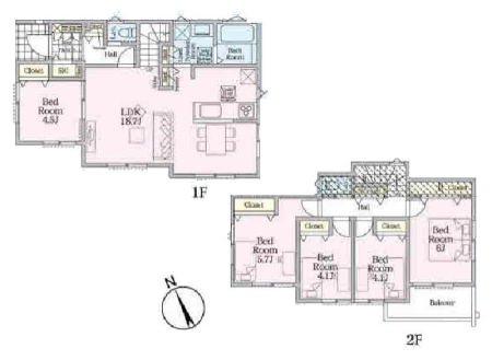
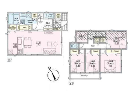
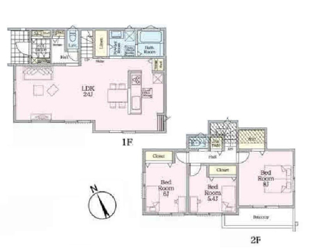
土地面積 | 127.05m² (38.43坪) | 建物面積 | 101.58u |
| 築年月 | 2026年4月築 | 間取り | 4LDK (-) | ||
| 交通 |
小田急江ノ島線 中央林間 徒歩13分
東急田園都市線 中央林間 徒歩13分 |
||||
| 特徴 |
|
|---|---|
| セールスコメント |
| 採光面 | - | 構造/階数 | 木造/地上2階建 |
|---|---|---|---|
| 建ぺい率 | 50(%) | 容積率 | 80(%) |
| 駐車場 | 有 | 現況/引渡し | 空家/即時 |
| 土地権利 | 所有権 | 私道負担面積 | - |
| 接道状況 | 接道: 西 公道 道路幅: 1.8m | 用途地域 |
第一種低層住居専用地域
|
| セットバック | なし | 法令上の制限 | セットバック要 30.62平米 14.19平米 13.91平米 協定道路:1号棟1.47平米 3号棟60.73平米 8号棟62.66平米 |
| 地目 | 宅地 | 地勢 | |
| 建築確認番号 | 第R07SHC120245号 | 都市計画 | 市街化区域 |
| 取引態様 | 仲介 | ||
| 情報更新日 | 2026年04月15日 | 次回更新日 | 2026年04月29日 |
| 小学校区 | 大和市立緑野小学校 (神奈川県大和市) この学区の他の物件を見る |
中学校区 | 南林間中学校 (神奈川県大和市) この学区の他の物件を見る |
|---|
| 価格 | 万円 | ||
|---|---|---|---|
| 年利率 | % |
||
| ボーナス払い | 返済年数 | ||
| 頭金 | 直接入力する | 万円 | |

毎月のご返済額 |
ボーナス(×年2回) |
物件価格6,930万円 |
![]() |
![]() |
大和市中央林間西5丁目
6180万円〜6930万円 |
-