グラファーレ東村山市富士見町4丁目14期 新築戸建 全1棟 東京都東村山市富士見町4丁目|4,080万円の新築一戸建て|エムイーPLUS多摩
| 価格 | 4,080万円値下がり ![]() |
||||
|---|---|---|---|---|---|
| 所在地 | 東京都東村山市富士見町4丁目
この地域周辺の物件を見る |
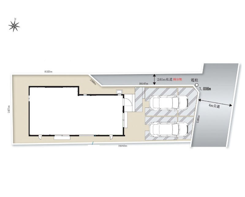
土地面積 | 139.58m² (42.22坪) | 建物面積 | 96.05u |
| 築年月 | 2026年4月築 | 間取り | 4LDK (-) | ||
| 交通 |
西武多摩湖線 武蔵大和 徒歩8分
西武多摩湖線 西武遊園地 徒歩24分 |
||||
| 特徴 |
|
|---|---|
| セールスコメント |
| 採光面 | - | 構造/階数 | 木造/地上2階建 |
|---|---|---|---|
| 建ぺい率 | 50(%) | 容積率 | 100(%) |
| 駐車場 | 有 | 現況/引渡し | 空家/即時 |
| 土地権利 | 所有権 | 私道負担面積 | - |
| 接道状況 | 接道: 東 公道 道路幅: 4m | 用途地域 |
第一種低層住居専用地域
|
| セットバック | なし | 法令上の制限 | 準防火地域 北側私道接道幅員2.61メートル(持分無し) |
| 地目 | 宅地 | 地勢 | |
| 建築確認番号 | TKK確済25-443号 | 都市計画 | 市街化区域 |
| 取引態様 | 仲介 | ||
| 情報更新日 | 2026年05月20日 | 次回更新日 | 2026年06月03日 |
| 小学校区 | 東村山市立富士見小学校 (東京都東村山市) この学区の他の物件を見る |
中学校区 | 東村山第七中学校 (東京都東村山市) この学区の他の物件を見る |
|---|
| 価格 | 万円 | ||
|---|---|---|---|
| 年利率 | % |
||
| ボーナス払い | 返済年数 | ||
| 頭金 | 直接入力する | 万円 | |

毎月のご返済額 |
ボーナス(×年2回) |
物件価格4,080万円 |
-