相模原市南区大野台8丁目2期 新築戸建 全1棟 神奈川県相模原市南区大野台8丁目|4,480万円の新築一戸建て|エムイーPLUS多摩
| 価格 | 4,480万円 ![]() |
||||
|---|---|---|---|---|---|
| 所在地 | 神奈川県相模原市南区大野台8丁目
この地域周辺の物件を見る |
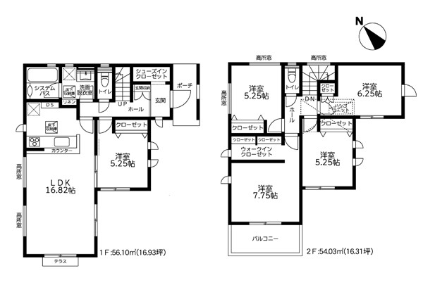
土地面積 | 141.84m² (42.9坪) | 建物面積 | 110.13u |
| 築年月 | 2026年11月築 | 間取り | 5LDK (-) | ||
| 交通 |
JR横浜線 古淵 徒歩25分
JR横浜線 古淵 バス12分 大野台8丁目 停歩4分 |
||||
| 特徴 |
|
|---|---|
| セールスコメント | 都市計画:市街化調整区域(建築許可:開発許可等による分譲地内) |
| 採光面 | - | 構造/階数 | 木造/地上2階建 |
|---|---|---|---|
| 建ぺい率 | 50(%) | 容積率 | 100(%) |
| 駐車場 | 有 | 現況/引渡し | -/2026年11月下旬 |
| 土地権利 | 所有権 | 私道負担面積 | - |
| 接道状況 | 接道: 東南 公道 道路幅: 4m | 用途地域 |
指定なし
|
| セットバック | なし | 法令上の制限 | 法22条区域 宅地造成および特定盛土等規制法 首都圏近郊緑地保全法 本地以外に別途私道持分有(番地3085番20 公衆用道路 地積21平米 持分全部) 2台駐車可※車種による |
| 地目 | 宅地 | 地勢 | |
| 建築確認番号 | 第25UDI1K建02490号 | 都市計画 | 市街化調整区域 |
| 取引態様 | 仲介 | ||
| 情報更新日 | 2026年05月20日 | 次回更新日 | 2026年06月03日 |
| 小学校区 | 相模原市立大野台小学校 (神奈川県相模原市) この学区の他の物件を見る |
中学校区 | 大野台中学校 (神奈川県相模原市) この学区の他の物件を見る |
|---|
| 価格 | 万円 | ||
|---|---|---|---|
| 年利率 | % |
||
| ボーナス払い | 返済年数 | ||
| 頭金 | 直接入力する | 万円 | |

毎月のご返済額 |
ボーナス(×年2回) |
物件価格4,480万円 |
-