八王子市長沼町7期 新築戸建 全1棟 東京都八王子市長沼町 |4,799万円の新築一戸建て|エムイーPLUS多摩
| 価格 | 4,799万円 ![]() |
||||
|---|---|---|---|---|---|
| 所在地 | 東京都八王子市長沼町
この地域周辺の物件を見る |
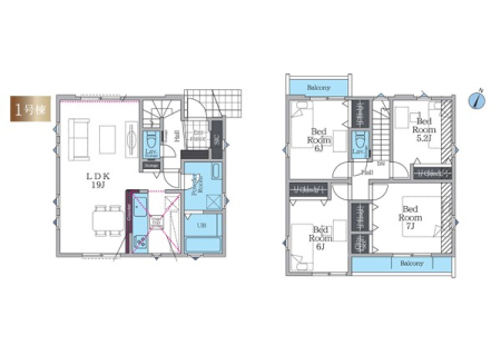
土地面積 | 148.29m² (44.85坪) | 建物面積 | 100.19u |
| 築年月 | 2026年9月築 | 間取り | 4LDK (-) | ||
| 交通 |
京王線 長沼 徒歩13分
京王線 平山城址公園 徒歩17分 |
||||
| 特徴 |
|
|---|---|
| セールスコメント |
| 採光面 | - | 構造/階数 | 木造/地上2階建 |
|---|---|---|---|
| 建ぺい率 | 40(%) | 容積率 | 80(%) |
| 駐車場 | 有 | 現況/引渡し | -/2026年9月下旬 |
| 土地権利 | 所有権 | 私道負担面積 | - |
| 接道状況 | 接道: 北 公道 道路幅: 4.6m | 用途地域 |
第一種低層住居専用地域
|
| セットバック | なし | 法令上の制限 | 法22条区域 第一種高度地区 下水道処理区域 宅地造成等工事規制区域 日陰規制3h-2h1.5m 高さ10m |
| 地目 | 宅地 | 地勢 | |
| 建築確認番号 | 第25UDI1W健14404号 | 都市計画 | 市街化区域 |
| 取引態様 | 仲介 | ||
| 情報更新日 | 2026年05月27日 | 次回更新日 | 2026年06月10日 |
| 小学校区 | 八王子市立長沼小学校 (東京都八王子市) この学区の他の物件を見る |
中学校区 | 打越中学校 (東京都八王子市) この学区の他の物件を見る |
|---|
| 価格 | 万円 | ||
|---|---|---|---|
| 年利率 | % |
||
| ボーナス払い | 返済年数 | ||
| 頭金 | 直接入力する | 万円 | |

毎月のご返済額 |
ボーナス(×年2回) |
物件価格4,799万円 |
-