八王子市子安町2丁目4期 新築戸建 全3棟 東京都八王子市子安町2丁目|6,499万円の新築一戸建て|エムイーPLUS多摩
| 価格 | 6,499万円 ![]() |
||||
|---|---|---|---|---|---|
| 所在地 | 東京都八王子市子安町2丁目
この地域周辺の物件を見る |
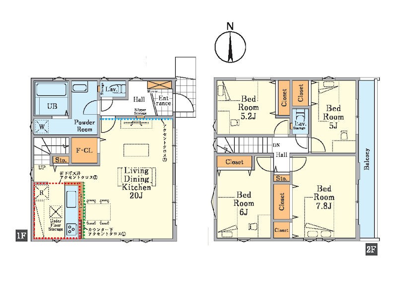
土地面積 | 115.25m² (34.86坪) | 建物面積 | 105.58u |
| 築年月 | 2026年9月築 | 間取り | 4LDK (-) | ||
| 交通 |
JR中央線 八王子 徒歩15分
京王高尾線 京王片倉 徒歩10分 |
||||
| 特徴 |
|
|---|---|
| セールスコメント |
| 採光面 | - | 構造/階数 | 木造/地上2階建 |
|---|---|---|---|
| 建ぺい率 | 50(%) | 容積率 | 100(%) |
| 駐車場 | 有 | 現況/引渡し | -/2026年9月下旬 |
| 土地権利 | 所有権 | 私道負担面積 | - |
| 接道状況 | 接道: 北東 公道 道路幅: 6m | 用途地域 |
第一種低層住居専用地域
|
| セットバック | なし | 法令上の制限 | 準防火地域 第一種高度地区 高さ10メートル以下 日影規制3-2h1.5メートル 宅地造成工事規制区域 |
| 地目 | 宅地 | 地勢 | |
| 建築確認番号 | 第25UDI1W14050号 | 都市計画 | 市街化区域 |
| 取引態様 | 仲介 | ||
| 情報更新日 | 2026年05月10日 | 次回更新日 | 2026年05月24日 |
| 小学校区 | 八王子市立いずみの森義務教育学校 (東京都八王子市) この学区の他の物件を見る |
中学校区 | 第三中学校 (東京都八王子市) この学区の他の物件を見る |
|---|
| 価格 | 万円 | ||
|---|---|---|---|
| 年利率 | % |
||
| ボーナス払い | 返済年数 | ||
| 頭金 | 直接入力する | 万円 | |

毎月のご返済額 |
ボーナス(×年2回) |
物件価格6,499万円 |
![]() |
![]() |
八王子市子安町2丁目
6499万円〜6999万円 |
-