多摩市和田 中古戸建 東京都多摩市和田 |2,699万円の中古一戸建て|エムイーPLUS多摩
| 価格 | 2,699万円 ![]() |
||||
|---|---|---|---|---|---|
| 所在地 | 東京都多摩市和田
この地域周辺の物件を見る |
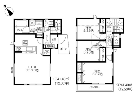
土地面積 | 64.27m² (19.44坪) | 建物面積 | 64.35u |
| 築年月 | 1997年4月築 | 間取り | 3LDK (-) | ||
| 交通 |
多摩都市モノレール 大塚・帝京大学 徒歩19分
多摩都市モノレール 大塚・帝京大学 バス6分 中和田 停歩2分 |
||||
| 特徴 |
|
|---|---|
| セールスコメント | 準防火地域 23m第2種高度地区 |
| 採光面 | - | 構造/階数 | 木造/地上2階建 |
|---|---|---|---|
| 建ぺい率 | 60(%) | 容積率 | 200(%) |
| 駐車場 | 有 | 現況/引渡し | 空家/相談 |
| 土地権利 | 所有権 | 私道負担面積 | - |
| 接道状況 | 接道: 南 公道 道路幅: 6m | 用途地域 |
第二種中高層住居専用地域
|
| セットバック | なし | 法令上の制限 | 準防火地域 23m第2種高度地区 |
| 地目 | 宅地 | 地勢 | 平坦 |
| 建築確認番号 | 都市計画 | 市街化区域 | |
| 取引態様 | 仲介 | ||
| 情報更新日 | 2026年05月16日 | 次回更新日 | 2026年05月30日 |
| 小学校区 | 多摩市立多摩第二小学校 (東京都多摩市) この学区の他の物件を見る |
中学校区 | 和田中学校 (東京都多摩市) この学区の他の物件を見る |
|---|
| 価格 | 万円 | ||
|---|---|---|---|
| 年利率 | % |
||
| ボーナス払い | 返済年数 | ||
| 頭金 | 直接入力する | 万円 | |

毎月のご返済額 |
ボーナス(×年2回) |
物件価格2,699万円 |
-