秦野市堀西第23 新築戸建 全2棟 神奈川県秦野市堀西 |2,980万円の新築一戸建て|エムイーPLUS多摩
| 価格 | 2,980万円 ![]() |
||||
|---|---|---|---|---|---|
| 所在地 | 神奈川県秦野市堀西
この地域周辺の物件を見る |
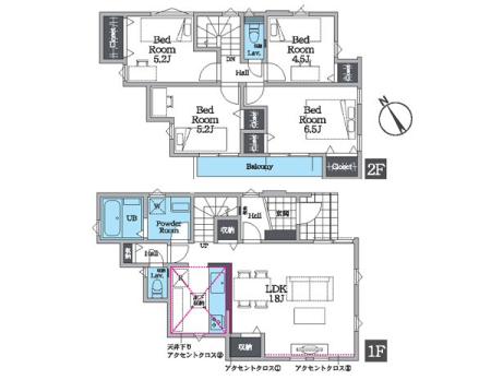
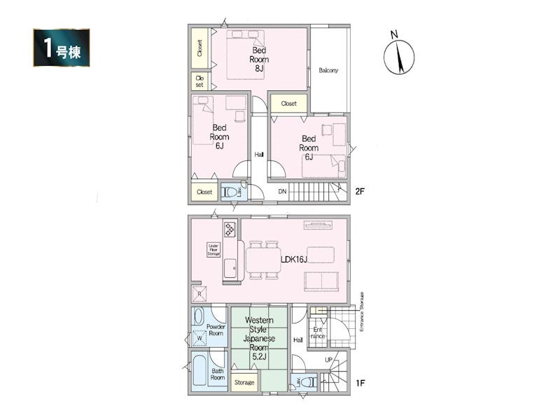
土地面積 | 128m² (38.72坪) | 建物面積 | 95.58u |
| 築年月 | 2026年3月築 | 間取り | 4LDK (-) | ||
| 交通 |
小田急小田原線 秦野 バス12分 西小学校前 停歩10分
小田急小田原線 渋沢 徒歩17分 |
||||
| 特徴 |
|
|---|---|
| セールスコメント |
| 採光面 | - | 構造/階数 | 木造/地上2階建 |
|---|---|---|---|
| 建ぺい率 | 70(%) | 容積率 | 200(%) |
| 駐車場 | 有 | 現況/引渡し | -/2026年3月下旬 |
| 土地権利 | 所有権 | 私道負担面積 | - |
| 接道状況 | 接道: 北 12.6m 公道 道路幅: 4.3m 接道: 東 7.8m 公道 道路幅: 6.1m |
用途地域 |
第一種中高層住居専用地域
|
| セットバック | なし | 法令上の制限 | 日影規制、道路斜線制限、隣地斜線制限、敷地面積100平米以上 |
| 地目 | 宅地 | 地勢 | 平坦 |
| 建築確認番号 | 第KBI−SGM25−10−4803号 | 都市計画 | 市街化区域 |
| 取引態様 | 仲介 | ||
| 情報更新日 | 2026年01月24日 | 次回更新日 | 2026年02月07日 |
| 小学校区 | 秦野市立西小学校 (神奈川県秦野市) この学区の他の物件を見る |
中学校区 | 西中学校 (神奈川県秦野市) この学区の他の物件を見る |
|---|
| 価格 | 万円 | ||
|---|---|---|---|
| 年利率 | % |
||
| ボーナス払い | 返済年数 | ||
| 頭金 | 直接入力する | 万円 | |

毎月のご返済額 |
ボーナス(×年2回) |
物件価格2,980万円 |
![]() |
![]() |
秦野市堀西
2780万円〜2980万円 |
-